Vente
Maison
à
Le Havre
198 000 €
Le Havre (76600)
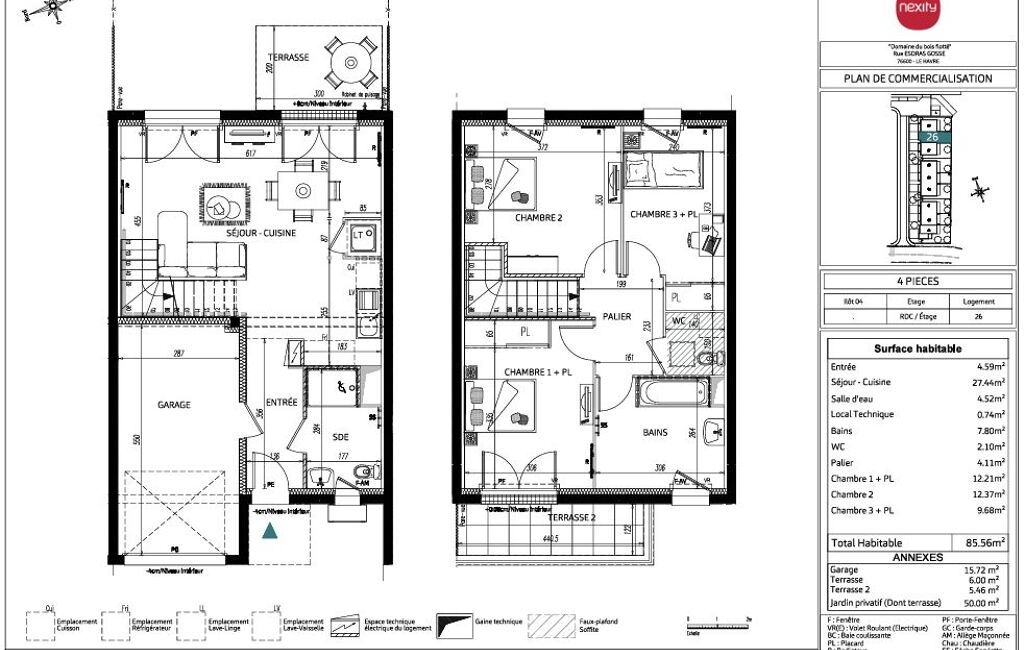
Maison 100m2, 4 chambres, terrasses et garage double.
Venez vite découvrir ce bien en excellent état !
Situé à proximité des commerces et des transports en commun, au cœur d'une petite copropriété, au calme, gérée par un syndic bénévole, vous serez séduit par sa configuration originale.
Vous accéderez à la maison par une terrasse de 20m2 avec sa dépendance.
Au rez de chaussée : une entrée, un WC, placard, une cuisine aménagée ouverte sur un grand séjour / salon lumineux donnant accès à une loggia pour profiter de la vue dégagée au Sud.
Au 1er étage: un palier desservant 3 chambres et 1 salle de bain avec WC.
Au niveau inférieur : Une pièce avec son point d'eau de 16m2 pouvant servir de buanderie ou de 4ème chambre donnant sur une terrasse de 30 m2.
Un garage 2 voitures avec accès privatif et direct complètent ce bien.
Le prix de vente honoraires d'agence inclus est de 198000 €.
Cette annonce vous est proposée par Mr GRANDON Pierre, Agent Commercial, N° RSAC 938 816 477 immatriculé à la CCI du Havre.
Le bien est soumis au statut de la copropriété , celle ci comporte 26 lots dont 13 lots d'habitation , la quote-part budget prévisionnel (Charges de copropriété) est de 210 euros/trimestre. Syndic bénévole.
L'étiquette du DPE est en E et l'indice GES en E. Montant estimé des dépenses annuelles d'énergie pour un usage standard : entre 2240€ et 3360€. Prix moyens des énergies indexés en 2023.
Les informations sur les risques auxquels ce bien est exposé sont disponibles sur le site Géorisques : https://www.georisques.gouv.fr
Pour parler à l'un de nos conseillers et réaliser une visite, il vous suffit de composer le numéro habituel , TAPEZ LE CHOIX 3.
Référence agence : 4173
Mandat : 4173
Diagnostic de Performance Énergétique (DPE)
Plus d'informations
-
Descriptif
- Nb. de WC : 2
- Balcon
- Nb. de salles de bain : 1
- Terrasse
- Nbre. de chambres : 4
- Nb. de pièces : 5
-
Conditions
- Taxe foncière : 2 257 €
- Prix hors honoraires acquéreur : 198 000 €
- Honoraires à charge de : vendeur
-
Loi ALUR
- Copropriété
- Nombre de lots de la copropriété : 26
-
Equipement
- Chauffage : Gaz individuel
-
Etat
- État general : bon
-
Superficies
- Surface habitable : 100 m²
Localisation
Contactez nous
Pour plus d'informations sur cette annonce, n'hésitez pas à nous contacter