Vente
Maison neuve
à
Saint-Michel-Escalus
339 000 €
Saint-Michel-Escalus (40550)
Maison d’en France Sud-Ouest vous propose ce très beau projet sur un terrain de 764m², entièrement viabilisé, au sein d’un magnifique lotissement baigné de calme, de nature, d’authenticité. Saint-Michel-Escalus se situe à 5mn de l’étang de Léon, moins de 20 minutes de l’océan et à quelques kilomètres de l’A63 qui vous mènera à Bordeaux comme à Bayonne.
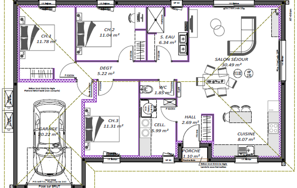
Cette future construction de 104m² est composée d’une belle pièce de vie de près de 47m², baignée de lumière grâce à sa double orientation. La cuisine semi ouverte permet un accès direct au cellier et au garage. Un véritable de gage de fonctionnalité ! Une confortable terrasse couverte prolonge ce bel espace de vie.
Côté nuit : une suite parentale dotée d’une salle d’eau privative et deux chambres avec placards intégrés, une salle de bains avec douche et baignoire recevront aisément un couple et deux enfants. WC séparé.
Votre futur nid douillet répondra à toutes vos attentes.
Le système de chauffage suggéré (Gainable) vous assurera le plus grand confort dans le respect des nouvelles normes environnementales, tout en vous assurant de très substantielles économies, tant en chauffage qu’en rafraîchissement.
Ce projet vous est proposé « tout compris » hors peintures et cuisine.
Pas de plan type chez Maisons d’en France : plan, disposition, système de chauffage, tout reste entièrement personnalisable selon vos envies.
Maison + terrain + frais de notaire + terrassement + raccordements à partir de 339 000 euros. Dommages-ouvrage et garanties de parfait achèvement et de livraison à prix et délais convenus incluses.
Terrain viabilisé de 764m², selon disponibilité de notre partenaire foncier. Non mandaté pour la vente du terrain.
Pour plus de renseignements, n'hésitez pas à joindre Katherine, votre conseillère Maisons d'en France Sud-Ouest, agence de CASTETS.
Référence : KF-SME-610
Mandat : KF-SME-610
Plus d'informations
-
Descriptif
- Nbre. de chambres : 3
- Nb. de pièces : 5
-
Conditions
- Prix du terrain : 111 000 €
- Honoraires à charge de : vendeur
-
Superficies
- Superficie terrain : 764 m²
- Surface habitable : 104 m²
Localisation
Contactez nous
Pour plus d'informations sur cette annonce, n'hésitez pas à nous contacter