Vente
Maison neuve
à
Linxe
368 000 €
Linxe (40260)
Réalisez votre rêve de construction sur la très jolie commune de Linxe, à 10mn de l’océan, au cœur d’un lotissement à taille humaine. Par exemple sur ce terrain de 974 m², entièrement viabilisé, en lisière de forêt. A 500 m du centre de ce bourg en pleine expansion, de ses commerces et services, écoles et collège. Idéalement situé à 15 mn de Castets et de l’A63.
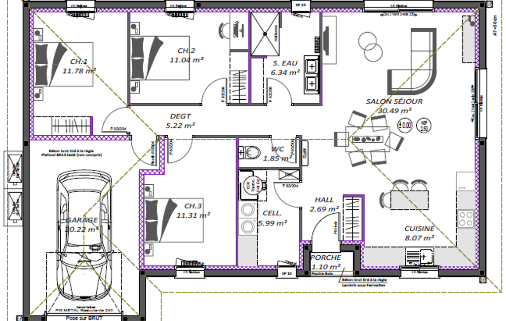
Maisons d’en France Sud-Ouest vous propose d’y construire cette maison neuve ultra lumineuse de 111 m² + garage.
Cette future construction est composée d’une belle pièce de vie de près de 47m², baignée de lumière grâce à sa double orientation. La cuisine semi ouverte permet un accès direct au cellier et au garage. Un véritable de gage de fonctionnalité ! Une confortable terrasse couverte prolonge ce bel espace de vie.
Côté nuit : une suite parentale dotée d’une salle d’eau privative et deux chambres avec placards intégrés, une salle de bains avec douche et baignoire et recevront aisément un couple et deux enfants. WC séparé.
Ce futur nid douillet répondra à toutes vos attentes.
Le système de chauffage suggéré (PAC Air/Air - Gainable) vous assurera le plus grand confort dans le respect des nouvelles normes environnementales, tout en vous assurant de très substantielles économies, tant en chauffage qu’en rafraîchissement.
Ce projet vous est proposé « tout compris » hors peintures et cuisine.
Pas de plan type chez Maisons d’en France : plan, disposition, système de chauffage, tout reste entièrement personnalisable selon vos envies.
Terrain viabilisé de 974 m², selon disponibilité de notre partenaire foncier. Non mandaté pour la vente du terrain.
Maison (dommage ouvrage et garantie de livraison incluses) + terrain + frais de notaire + terrassement + raccordements à partir de 368 000 euros.
Pour plus de renseignements, n'hésitez pas à joindre Katherine Ferrère, votre conseillère Maisons d'en France Sud-Ouest, agence de CASTETS.
Référence : KF-LINXE-266
Mandat : KF-LINXE-266
Plus d'informations
-
Descriptif
- Nbre. de chambres : 3
- Nb. de pièces : 4
-
Conditions
- Prix du terrain : 140 256 €
- Honoraires à charge de : vendeur
-
Superficies
- Superficie terrain : 974 m²
- Surface habitable : 111 m²
Localisation
Contactez nous
Pour plus d'informations sur cette annonce, n'hésitez pas à nous contacter