Vente
Maison neuve
à
Saint-Paul-Lès-Dax
320 000 €
Saint-Paul-Lès-Dax (40990)
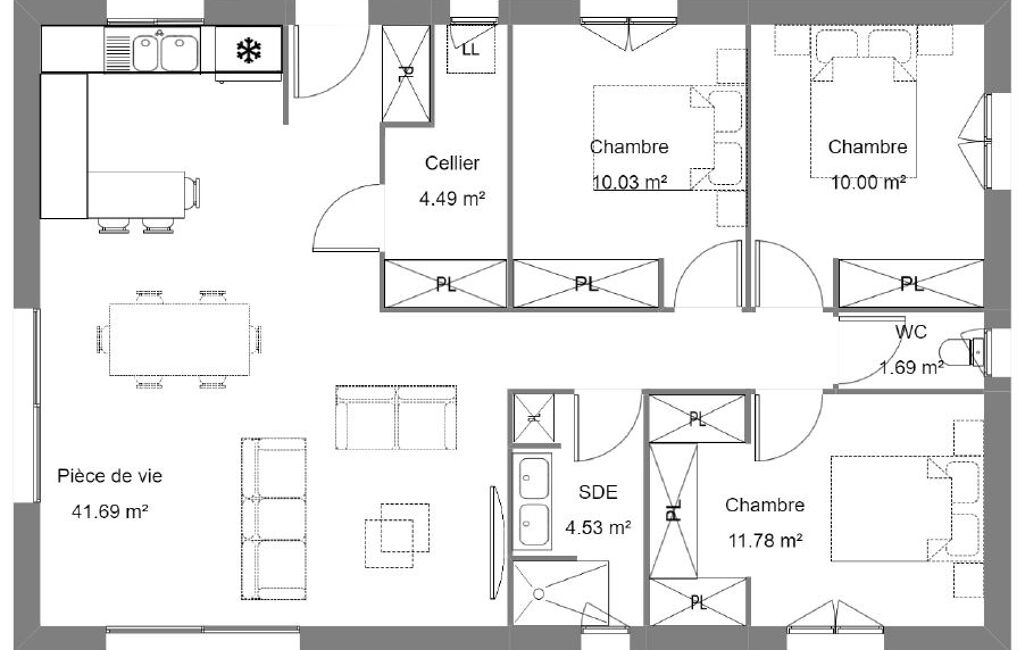
Votre maison sur ce magnifique terrain de 655m² que nous avons sélectionné à Saint-Paul-lès-Dax. Réalisez votre rêve dans ce quartier résidentiel, calme et arboré, à 5mn du lac de Christus ou du Grand-Mail, proche des transports en communs. Maisons d’en France Sud-Ouest vous propose, à titre d’exemple, de construire cette maison neuve ultra lumineuse de 95 m² + garage de 20m².
Optimisée et confortable, elle se compose d’une pièce de vie de près de 40m², super lumineuse grâce à sa triple exposition et ses larges baies vitrées. La cuisine semi ouverte se prolonge d’un cellier pratique pouvant recevoir de nombreux rangements. Trois chambres, de plus de 11m², constituent le coin nuit. Que viennent compléter la salle d’eau équipée d’une double vasque et d’une douche à l’italienne et un WC séparé.
Le système de chauffage suggéré vous assurera le plus grand confort dans le respect de la RE 2020, tout en vous assurant de très substantielles économies, tant en chauffage qu’en rafraîchissement.
Maison prête à décorer, (hors peintures et cuisine).
Pas de plan type chez Maisons d’en France : plan, disposition, système de chauffage, tout reste entièrement personnalisable selon vos envies.
Terrain viabilisé de 655 m², selon disponibilité de notre partenaire foncier. Non mandaté pour la vente du terrain.
Prix incluant maison + terrain + frais de notaire + terrassement + raccordements à partir de 320 000 euros. Dommages-ouvrage et garanties de parfait achèvement et de livraison à prix et délais convenus incluses.
Pour plus de renseignements, n'hésitez pas à joindre Katherine FERRERE, votre conseillère Maisons d'en France Sud-Ouest.
Référence : KF-SPLD-591
Mandat : KF-SPLD-591
Plus d'informations
-
Descriptif
- Nbre. de chambres : 3
- Nb. de pièces : 5
-
Conditions
- Prix du terrain : 149 000 €
- Honoraires à charge de : vendeur
-
Superficies
- Superficie terrain : 655 m²
- Surface habitable : 95 m²
Localisation
Contactez nous
Pour plus d'informations sur cette annonce, n'hésitez pas à nous contacter