Vente
Maison
à
Razac-sur-l'Isle
131 214 €
Razac-sur-l'Isle (24430)
Une pièce à vivre à la double exposition
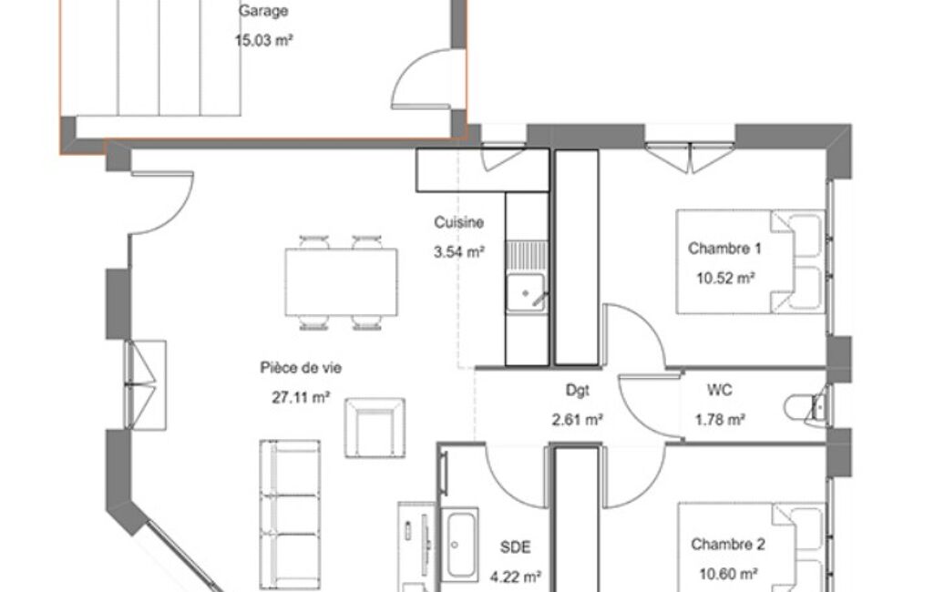
Avec sa faible emprise au sol, cette maison deux chambres s’adaptera facilement à de très nombreux terrains constructibles. Dans un lotissement ou en diffus, faire construire sa maison optimisée devient facile avec Ma Première Maisons d’en France.
Une véritable entrée caractérise ce modèle avec, notamment, son hall et un grand placard. Vous aurez ainsi la possibilité de ranger facilement les manteaux, chaussures ou autres accessoires qui n’encombreront pas le salon-séjour. Dans le prolongement de cette entrée, nous plongeons directement dans la pièce à vivre avec sa double exposition. Ainsi vous profiterez plus souvent de la lumière naturelle du jour dans cet espace de vie. Selon vos envies, vous pourrez le personnaliser et intégrer une table ronde pour 6 personnes en plus d’un canapé d’angle de 3 ou 4 places. Un coin télé pour la détente, un coin repas pour recevoir des amis ou pour le quotidien, les 30m² de la pièce à vivre vous laisseront du choix pour votre aménagement. La porte fenêtre, elle, vous fera accéder à votre terrasse et au jardin. De bons moments en perspectives sous le soleil des Landes.
Cette pièce principale est également composée d’une cuisine ouverte sur le salon pour une plus grande convivialité. Il est ainsi facile de cuisiner tout en participant à la vie de famille. La cuisine est implantée en U avec sa fenêtre horizontale au-dessus de l’évier. Une conception moderne qui vous permettra d’installer de nombreux rangements, en plus des indispensables frigo, zone de préparation et plaques de cuisson.
Enfin, un cellier se situe juste à l’entrée, à proximité de la cuisine. Cette pièce, longtemps oubliée et qui redevient indispensable, a l’avantage de pouvoir accueillir une machine à laver et un sèche-linge.Le chauffe-eau thermodynamique, qui produira votre eau chaude sanitaire, est, lui aussi, installé dans cette pièce fermée.
Une maison rectangulaire en deux chambres
Au sein de cette maison optimisée à l’architecture rectangulaire mais à l’opposé de la pièce à vivre, nous retrouvons les deux chambres et la salle d’eau.
Cette salle d’eau est équipée d’une grande douche à l’italienne de 120x90cm et de son sèche-serviettes. A vous d’aménager, selon votre mode de vie, cette pièce tendance actuellement.
Les deux chambres sont au fond de la maison, synonyme de calme et de tranquillité. Chacune d’elle bénéficie d’un grand placard intégré de près de 3 mètres de large. Un volume généreux qui permet de nombreux rangements pour les vêtements mais pas que. Penderie, étagères, tiroirs…vous aurez le choix pour réaliser l’agencement qui vous convient. Les deux chambres de ce plan de maison optimisée peuvent accueillir chacune un lit deux places et même un bureau si nécessaire. L’une d’elles peut se transformer en chambre d’amis ou pièce pour du télétravail selon vos besoins.
Vous l’aurez remarqué, plusieurs possibilités s’offrent à vous dans cette maison deux chambres. Optimisée et conviviale avec sa petite surface, elle répond évidemment en tous points à la réglementation environnementale 2020 en vigueur actuellement.
Le prix comprend le terrain, les frais de notaires, la construction prête à décorer Le prix comprend le terrain, les frais de notaires, la construction prête à décorer. Garantie d’achèvement et de livraison à prix et délais convenus et Assurance Dommage Ouvrage incluses Non mandatée pour réaliser la vente du terrain, sous réserve de disponibilité de notre partenaire foncier . Plus d’informations auprès de votre conseiller Thierry DELEAU.
Mandat : 1775-td-raz
Diagnostic de Performance Énergétique (DPE)
Plus d'informations
-
Descriptif
- Nb. de salles d'eau : 1
- Nbre. de chambres : 2
- Type parking : Extérieur
- Nb. de WC séparés : 1
- Nb. de pièces : 3
-
Etat
- État general : Neuf
- Année de construction : 2024
-
Conditions
- Prix hors honoraires acquéreur : 131 214 €
- Honoraires à charge de : vendeur
-
Superficies
- Superficie terrain : 687 m²
- Surface habitable : 66 m²
Localisation
Contactez nous
Pour plus d'informations sur cette annonce, n'hésitez pas à nous contacter