Vente
Maison neuve
à
Castets
307 000 €
Castets (40260)
Rare : terrain de plus de 800m²! Sur la dynamique commune de Castets, Maison d’en France Sud-Ouest vous propose de construire votre maison entièrement personnalisable sur ce terrain de 828m² dans un quartier très calme, à deux pas du cœur du bourg, non loin des écoles, collège, services. A moins de 20 minutes de l’océan et tout près de l’A63 qui vous mènera à Bordeaux comme à Bayonne.
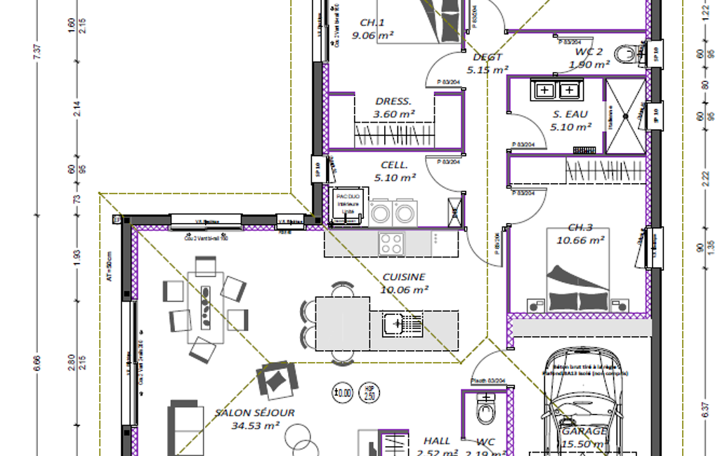
Un cadre idéal pour cette maison hyper optimisée de 92m² habitables, répondant aux normes de la RE 2020.
Confortable, fonctionnelle et lumineuse, cette future construction est composée d’une belle pièce de vie de 46 m² baignée de lumière grâce à ses larges baies vitrées, dont une en pan coupé. La cuisine semi ouverte permet un accès direct au cellier et au garage de près de 20m². Un véritable de gage de fonctionnalité !
Côté nuit : trois chambres avec placards intégrés recevront aisément un couple et deux enfants. WC séparé, salle de bains équipée d’une double vasque, d’une baignoire et d’une spacieuse douche.
Maison de vacances, investissement locatif ou résidence principale, ce nid douillet répondra à toutes vos attentes.
Doté d'un réglage pièce par pièce, le système de chauffage en gainable vous assurera le plus grand confort, tout en vous assurant de très substantielles économies, tant en chauffage qu’en rafraichissement.
Maison prête à décorer (hors peinture et parquets dans les chambres).
Plan, disposition, système de chauffage, tout reste entièrement personnalisable selon vos envies.
Terrain viabilisé de 828m², selon disponibilité de notre partenaire foncier. Non mandaté pour la vente du terrain.
Maison + terrain + frais de notaire + terrassement + raccordements à partir de 307 000 euros. Assurance dommages ouvrage et garanties de parfait achèvement et de livraison à prix et délais convenus sont incluses. Prix ferme et définitif.
Pour plus de renseignements, n'hésitez pas à joindre Katherine, votre conseillère Maisons d'en France Sud-Ouest.
Référence : KF-CASTETS-444
Mandat : KF-CASTETS-444
Plus d'informations
-
Descriptif
- Nbre. de chambres : 3
- Nb. de pièces : 4
-
Conditions
- Prix du terrain : 125 000 €
- Honoraires à charge de : vendeur
-
Superficies
- Superficie terrain : 828 m²
- Surface habitable : 92 m²
Localisation
Contactez nous
Pour plus d'informations sur cette annonce, n'hésitez pas à nous contacter