Vente
Maison neuve
à
Linxe
287 000 €
Linxe (40260)
Réalisez votre rêve de construction sur la très jolie commune de Linxe, à 10mn de l’océan, au cœur d’un lotissement à taille humaine. Par exemple sur ce terrain de 974 m², entièrement viabilisé, en lisière de forêt. A 500 m du centre de ce bourg en pleine expansion, de ses commerces et services, écoles et collège. Idéalement situé à 10 mn de Castets et de l’A63, à 10 mn de l’océan.
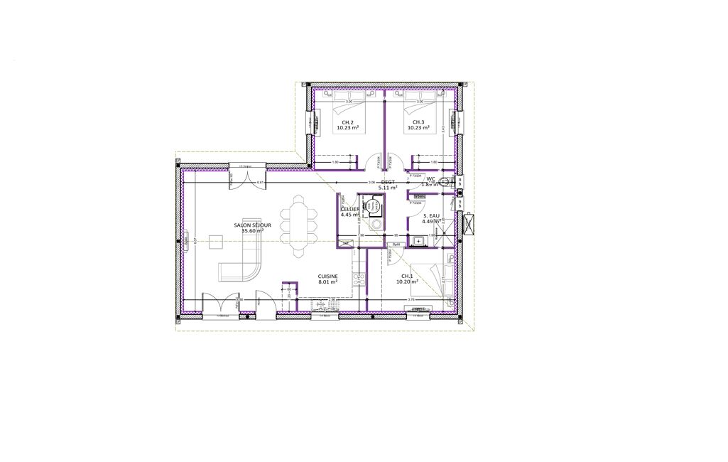
Maisons d’en France Sud-Ouest vous propose d’y construire cette maison neuve, moderne et fonctionnelle, de 90 m².
Cette future construction est composée d’une belle pièce de vie de près de 43m², baignée de lumière grâce à sa double orientation. La cuisine semi ouverte se double d’un cellier, indispensable des maisons d’aujourd’hui. Un véritable de gage de fonctionnalité !
Le côté nuit se compose de trois belles chambres avec placards intégrés, une salle de bains avec douche à l’italienne. WC séparé.
Ce futur nid douillet répondra à toutes vos attentes, tant en résidence principale qu’en maison de vacances. Ce modèle peut également se décliner en locatif.
Le système de chauffage suggéré (PAC Air/Air) vous assurera le plus grand confort dans le respect des nouvelles normes environnementales, tout en vous assurant de très substantielles économies, tant en chauffage qu’en rafraîchissement.
Ce projet vous est proposé « tout compris » hors peintures et cuisine.
Pas de plan type chez Maisons d’en France : plan, disposition, système de chauffage, tout reste entièrement personnalisable selon vos envies.
Terrain viabilisé de 974 m², selon disponibilité de notre partenaire foncier. Non mandaté pour la vente du terrain.
Maison (Assurance dommages ouvrage et garantie de livraison incluses) + terrain + frais de notaire + terrassement + raccordements à partir de 287 000 euros.
Pour plus de renseignements, n'hésitez pas à joindre Katherine Ferrère, votre conseillère Maisons d'en France Sud-Ouest, agence de CASTETS.
Référence : KF-LINXE-603
Mandat : KF-LINXE-603
Plus d'informations
-
Descriptif
- Nbre. de chambres : 3
- Nb. de pièces : 5
-
Conditions
- Prix du terrain : 140 256 €
- Honoraires à charge de : vendeur
-
Superficies
- Superficie terrain : 954 m²
- Surface habitable : 90 m²
Localisation
Contactez nous
Pour plus d'informations sur cette annonce, n'hésitez pas à nous contacter