Vente
Maison neuve
à
Léon
324 000 €
Léon (40550)
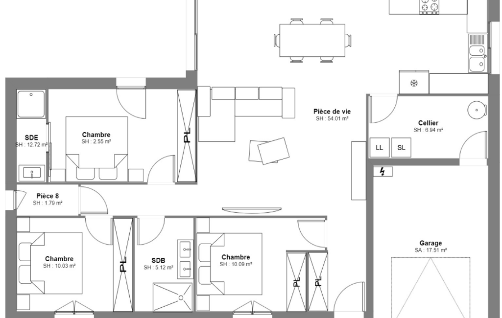
Réalisez votre rêve à Léon, petite commune authentique et préservée à 5km de l’océan et de ses belles plages, à deux pas de l’étang de Léon, des commerces et services. Maison d'en France CASTETS vous propose de construire cette maison neuve lumineuse et fonctionnelle, de 85m², sur le terrain de 1000m² que nous vous y avons déniché, hors lotissement, dans un quartier résidentiel très calme et prisé, idéalement situé tout près du bourg.
Cette future construction est composée d’une belle pièce de vie de près de 40m², baignée de lumière grâce à sa triple orientation. La cuisine semi ouverte permet un accès direct au cellier. Véritable gage de fonctionnalité !
Côté nuit : trois chambres avec placards intégrés et une salle de bains équipée recevront aisément un couple et deux enfants. WC séparé.
Ce futur nid douillet répondra à toutes vos attentes.
Le système de chauffage suggéré (PAC Air/Air) vous assurera le plus grand confort dans le respect des nouvelles normes environnementales, tout en vous assurant de très substantielles économies, tant en chauffage qu’en rafraîchissement.
Ce projet vous est proposé « tout compris » hors peintures et cuisine.
A ce projet vous pourriez ajouter un garage, des m², une terrasse…
Maison + terrain + frais de notaire + terrassement + raccordements à partir de 324 000 euros. Dommages-ouvrage et garanties de parfait achèvement et de livraison à prix et délais convenus incluses.
Pour plus de renseignements, n'hésitez pas à joindre Katherine FERRERE, votre conseillère Maisons d'en France Sud-Ouest, agence de CASTETS.
Référence : KF-LEON-278
Mandat : KF-LEON-278
Plus d'informations
-
Descriptif
- Nbre. de chambres : 3
- Nb. de pièces : 4
-
Conditions
- Prix du terrain : 185 000 €
- Honoraires à charge de : vendeur
-
Superficies
- Superficie terrain : 1000 m²
- Surface habitable : 85 m²
Localisation
Contactez nous
Pour plus d'informations sur cette annonce, n'hésitez pas à nous contacter