Vente
Maison neuve
à
Laluque
280 000 €
Laluque (40465)
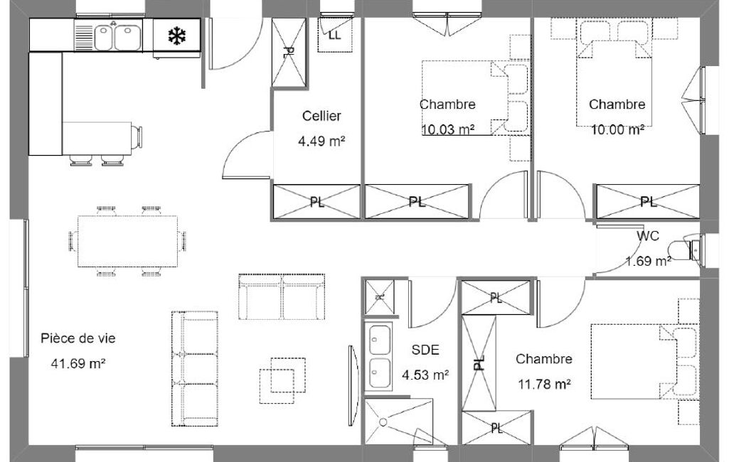
Sur la jolie commune de Laluque, idéalement située entre Castets et Pontonx, à moins de 40 minutes de l’océan et tout près de l’A63 qui vous mènera à Bordeaux comme à Bayonne Maisons d’en France Sud-Ouest vous propose de construire cette maison neuve ultra lumineuse de 111 m² + garage.
Cette future construction est composée d’une belle pièce de vie de près de 47m², baignée de lumière grâce à sa double orientation. La cuisine semi ouverte permet un accès direct au cellier et au garage. Un véritable de gage de fonctionnalité ! Une confortable terrasse couverte prolonge ce bel espace de vie.
Côté nuit : deux chambres avec placards intégrés, une salle de bains avec douche et baignoire et une suite parentale dotée d’une salle d’eau privative recevront aisément un couple et deux enfants. WC séparé.
Votre futur nid douillet répondra à toutes vos attentes.
Le système de chauffage suggéré (PAC Air/Air - Gainable) vous assurera le plus grand confort dans le respect des nouvelles normes environnementales, tout en vous assurant de très substantielles économies, tant en chauffage qu’en rafraîchissement.
Ce projet vous est proposé « tout compris » hors peintures et cuisine.
Pas de plan type chez Maisons d’en France : plan, disposition, système de chauffage, tout reste entièrement personnalisable selon vos envies.
Terrain viabilisé de 734 m², selon disponibilité de notre partenaire foncier. Non mandaté pour la vente du terrain.
Prix incluant maison + terrain + frais de notaire + terrassement + raccordements à partir de 280 000 euros. Dommages-ouvrage et garanties de parfait achèvement et de livraison à prix et délais convenus incluses.
Pour plus de renseignements, n'hésitez pas à joindre Katherine FERRERE, votre conseillère Maisons d'en France Sud-Ouest, agence de Castets.
Référence : KF-LAL-569
Mandat : KF-LAL-569
Plus d'informations
-
Descriptif
- Nbre. de chambres : 3
- Nb. de pièces : 5
-
Conditions
- Prix du terrain : 58 720 €
- Honoraires à charge de : vendeur
-
Superficies
- Superficie terrain : 734 m²
- Surface habitable : 111 m²
Localisation
Contactez nous
Pour plus d'informations sur cette annonce, n'hésitez pas à nous contacter