Vente
Maison neuve
à
Cazalis
287 600 €
Cazalis (40700)
Votre constructeur, Maisons d’en France Sud-Ouest, vous présente un pavillon de qualité sur la commune de Cazalis.
Le projet se situe sur un superbe terrain d’une superficie de 4 216 m² entièrement gazonné avec un environnement calme, à saisir pour les amoureux de la nature.
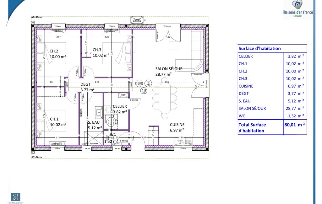
Notre maison modulable de 128 m² habitable avec un garage attenant de 25 m² est composée de trois belles chambres avec placard, d’un bureau et d’une suite parentale.
Des toilettes à l’entrée et dans le coin nuit. Le système de chauffage vous est proposé au sol avec possibilité de le modifier.
Toute la surface habitable de la maison sera carrelée, centralisation électrique pour l’ensemble des volets roulants.
L’isolation de votre maison vous permettra de bénéficier d’une faible consommation d’énergie.
Le prix de 287 600 € comprend : L’achat du terrain, la réalisation de la maison, les garanties d’achèvement et de livraison à prix et délais convenus, l’assurance dommages ouvrage, les frais de notaire et les frais de raccordements.
Nous ne sommes pas mandatés pour réaliser la vente du terrain.
Carlos notre conseiller habitat Maisons d’en France à Saint Pierre du Mont se tient à votre disposition pour vous présenter dans les détails ce projet de construction.
Mandat : CG-cazalis07Maelly
Plus d'informations
-
Descriptif
- Nbre. de chambres : 4
- Nb. de pièces : 6
-
Conditions
- Prix du terrain : 55 000 €
- Honoraires à charge de : vendeur
-
Superficies
- Superficie terrain : 4216 m²
- Surface habitable : 128 m²
Localisation
Contactez nous
Pour plus d'informations sur cette annonce, n'hésitez pas à nous contacter