Vente
Maison neuve
à
Biscarrosse
430 000 €
Biscarrosse (40600)
Maisons d’en France vous propose ce beau projet de construction à Biscarrosse sur un terrain de plus de 1200 m² proche de la forêt et sur la route vers la plage. Vibrez au rythme de Biscarrosse à seulement quelques minutes, des plages océanes, des grands lacs, et des balades en forêt à pied ou à vélo !
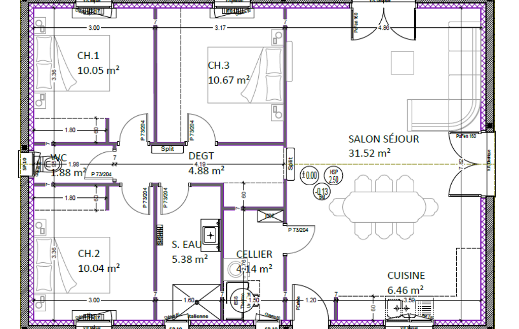
La maison que nous proposons sur ce terrain est résolument moderne avec ses beaux volumes et son efficacité énergétique à la pointe. Elle dispose d’un espace de vie total de 105 m², avec un garage attenant, et se compose :
- D’un espace jour proposant une spacieuse pièce de vie avec cuisine ouverte de 45 m² et un cellier.
- D’un espace nuit composé de 3 chambres, dont 2 avec placards et 1 suite parentale avec dressing & salle d'eau indépendante.
La maison possède les meilleures prestations :
- Volets roulants électriques domotiques contrôlables depuis un tableau de commande dans la maison, ou son téléphone ;
- Menuiseries et volets roulants tous en aluminium pour allier design, légèreté et robustesse.
- Chauffage par plancher chauffant, alimenté par une pompe à chaleur, vous offrant des hivers avec les pieds bien au chaud !
Ce projet est une proposition afin d’explorer des possibilités. L’ensemble est entièrement modifiable selon vos souhaits : plan, prestations, mode de chauffage, revêtements, etc.
Nous avons également d’autres lots que vous pouvez sélectionner pour que le terrain s’adapte parfaitement à votre maison et style de vie.
Ce projet inclut :
- La maison.
- Le terrain.
- Une Assurance Dommages Ouvrage.
À noter : Les travaux de terrassement, les raccordements & viabilisation, et les frais de notaire ne sont pas inclus.
Pour plus d’informations et échanger autour de votre projet, contactez votre conseiller Samuel COLLARD au O6 70 08 48 05.
Terrain proposé en collaboration avec notre partenaire foncier, sous réserve de disponibilité. Nous ne sommes pas mandatés pour la vente de ce terrain.
Ref : SCO-BIS-78
Mandat : SCO-BIS-78
Plus d'informations
-
Descriptif
- Nbre. de chambres : 3
- Nb. de pièces : 4
-
Conditions
- Prix du terrain : 247 000 €
- Honoraires à charge de : vendeur
-
Superficies
- Superficie terrain : 1200 m²
- Surface habitable : 105 m²
Localisation
Contactez nous
Pour plus d'informations sur cette annonce, n'hésitez pas à nous contacter