Vente
Maison neuve
à
Linxe
285 500 €
Linxe (40260)
Réalisez votre rêve de construction sur la très jolie commune de Linxe, à 10mn de l’océan, au cœur d’un lotissement à taille humaine. Par exemple sur ce terrain de 974 m², entièrement viabilisé, en lisière de forêt. A 500 m du centre de ce bourg en pleine expansion, de ses commerces et services, écoles et collège. Idéalement situé à 10 mn de Castets et de l’A63, à 10 mn de l’océan.
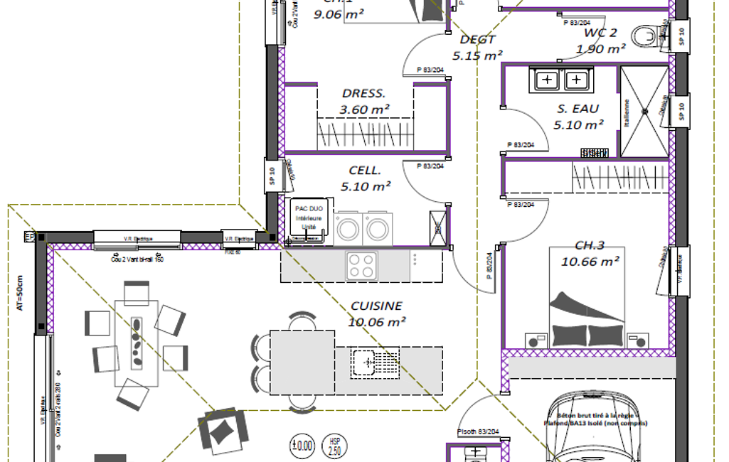
Maisons d’en France Sud-Ouest vous propose d’y construire cette maison neuve ultra lumineuse de 85m². Optimisée et fonctionnelle, elle se compose d’une pièce de vie de près de 42m² avec cuisine ouverte. Cette pièce de vie profite d’une triple exposition à la lumière naturelle.
Les trois chambres équipées soit d’un placard intégré, soit d’un dressing, accueilleront aisément une famille.
Doté d'un réglage pièce par pièce, le système de chauffage suggéré vous assurera le plus grand confort dans le respect de la RE 2020, tout en vous assurant de très substantielles économies, tant en chauffage qu’en rafraîchissement.
Plan, disposition, système de chauffage, tout reste entièrement personnalisable selon vos envies.
Terrain viabilisé de 974 m², selon disponibilité de notre partenaire foncier. Non mandaté pour la vente du terrain.
Maison (dommage ouvrage et garantie de livraison à prix et délais convenus incluses) + terrain + frais de notaire + terrassement + raccordements à partir de 285 500 euros.
Pour plus de renseignements, n'hésitez pas à joindre Katherine Ferrère, votre conseillère Maisons d'en France Sud-Ouest.
Référence : KF-LINXE-565
Mandat : KF-LINXE-565
Plus d'informations
-
Descriptif
- Nbre. de chambres : 3
- Nb. de pièces : 5
-
Conditions
- Prix du terrain : 140 256 €
- Honoraires à charge de : vendeur
-
Superficies
- Superficie terrain : 974 m²
- Surface habitable : 85 m²
Localisation
Contactez nous
Pour plus d'informations sur cette annonce, n'hésitez pas à nous contacter