Vente
Maison neuve
à
Mont-de-Marsan
271 000 €
Mont-de-Marsan (40000)
Votre constructeur de maisons à Saint Pierre du Mont, Maisons d’en France Sud-Ouest, vous présente un terrain viabilisé d’une superficie de 797 m² sur la commune de Mont e Marsan.
Idéalement situé au calme proche du centre ville.
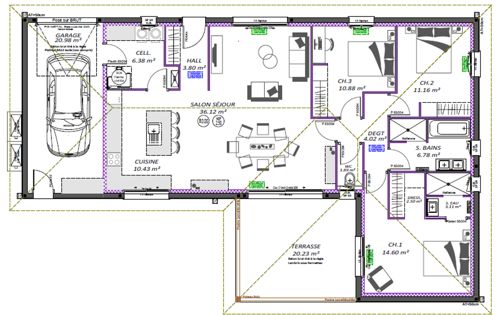
Nous vous proposons une surface habitable de 95 m² avec un garage attenant de 20 m².
La maison est d’une forme Architecturale simple en quatre pentes de toiture.
Elle est composée de trois belles chambres avec placard, d’un espace jour très lumineux avec de grandes ouvertures coulissantes en aluminiums.
Vous aurez le choix des sanitaires et du carrelage.
La construction de votre maison respectera la RE 2020 ce qui lui permettra de bénéficier entre autres d’une domotique dernier cri ainsi que d’une faible consommation d’énergie.
Le montant de 271 000 € comprend : L’achat du terrain, la réalisation de la maison prête à décorer, les garanties d’achèvement et de livraison à prix et délais convenus, l’assurance dommages ouvrage, les frais de notaire et de raccordements.
Nous ne sommes pas mandatés pour réaliser la vente du terrain. Il restera à votre charge les touches finales, à savoir les peintures, la cuisine et les clôtures.
Pour toutes informations complémentaires, n’hésitez pas à contacter Carlos notre Conseiller habitat Maisons d’en France.
Mandat : CG-MDM 2509Marie
Plus d'informations
-
Descriptif
- Nbre. de chambres : 3
- Nb. de pièces : 4
-
Conditions
- Prix du terrain : 103 610 €
- Honoraires à charge de : vendeur
-
Superficies
- Superficie terrain : 797 m²
- Surface habitable : 95 m²
Localisation
Contactez nous
Pour plus d'informations sur cette annonce, n'hésitez pas à nous contacter