Vente
Maison neuve
à
Oeyreluy
266 000 €
Oeyreluy (40180)
Projet de Construction sur mesure
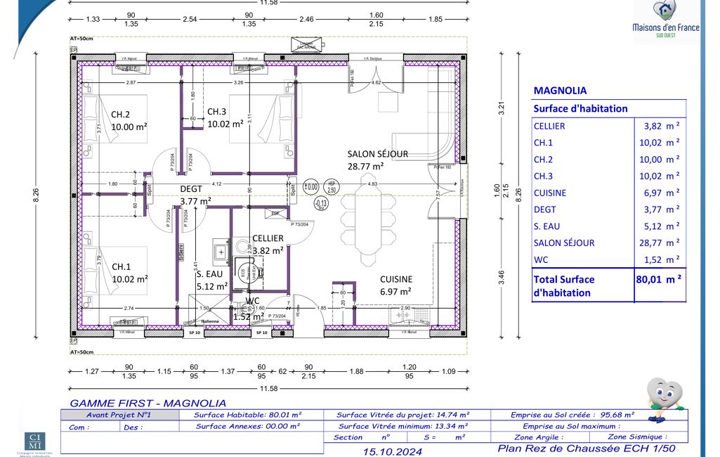
Rare sur le secteur, à OEYRELUY, a 10 minutes de Dax, Maisons d'En France, constructeur de maisons sur mesure, vous propose ce projet de construction à l'agencement moderne sur un terrain de 500 m².
Cette maison de 100 m² dispose d'une spacieuse & lumineuse pièce de vie d'environ 45 m² donnant sur une terrasse, de 3 belles chambres dont une suite parentale avec son espace dressing et sa salle d'eau privative.
Un garage complète l'ensemble.
L'ensemble du projet est modifiable ! Plan, prestations, mode de chauffage, revêtements ...
Contactez vite Marlène DUBERTRAND, agence de SAINT PAUL LES DAX, afin qu'elle vous guide dans les démarches et vous accompagne dans ce projet de construction personnalisé, aux normes RE2020.
Le prix comprend le montant du terrain, des frais de notaire, de la construction ( hors peinture ) ainsi que le montant du terrassement & des raccordements & Assainissement. L'assurance Dommages Ouvrages ainsi que la garantie de livraison sont également compris.
Plusieurs autres lots sont disponibles.
Non mandaté pour la vente du terrain - Sous réserve de disponibilité auprès de notre partenaire foncier.
Ref : MD-OEYRELUY
Mandat : MD-OEYRELUY
Plus d'informations
-
Descriptif
- Nbre. de chambres : 3
- Nb. de pièces : 4
-
Conditions
- Prix du terrain : 79 000 €
- Honoraires à charge de : vendeur
-
Superficies
- Superficie terrain : 500 m²
- Surface habitable : 100 m²
Localisation
Contactez nous
Pour plus d'informations sur cette annonce, n'hésitez pas à nous contacter