Vente
Maison neuve
à
Saint-Michel-Escalus
289 000 €
Saint-Michel-Escalus (40550)
Maison d’en France Sud-Ouest vous propose ce beau projet sur un terrain de 764m², entièrement viabilisé, au sein d’un petit lotissement baigné de calme, de nature, d’authenticité. Saint-Michel-Escalus se situe à moins de 20 minutes de l’océan et à quelques kilomètres de l’A63 qui vous mènera à Bordeaux comme à Bayonne.
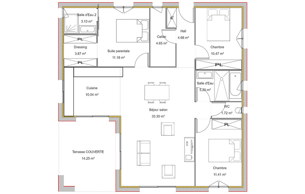
Cette future construction de 99 m² est composée d’une belle pièce de vie de près de 47m², baignée de lumière grâce à sa triple orientation. La cuisine semi ouverte permet un accès direct au cellier et au garage à vélo. Un véritable de gage de fonctionnalité ! Une confortable terrasse prolonge ce bel espace de vie.
Côté nuit : trois confortables chambres avec placards intégrés, une salle de bains avec douche et double vasque, recevront aisément un couple et deux enfants. WC séparé.
Le système de chauffage suggéré vous assurera le plus grand confort dans le respect des nouvelles normes environnementales, tout en vous assurant de très substantielles économies, tant en chauffage qu’en rafraîchissement.
Ce projet vous est proposé « tout compris » hors peintures, parquet dans les chambres et cuisine.
Pas de plan type chez Maisons d’en France : plan, disposition, système de chauffage, tout reste entièrement personnalisable selon vos envies.
Maison + terrain + frais de notaire + terrassement + raccordements à partir de 289 000 euros. Dommages-ouvrage et garanties de parfait achèvement et de livraison à prix et délais convenus incluses.
Terrain viabilisé de 764m², selon disponibilité de notre partenaire foncier. Non mandaté pour la vente du terrain.
Pour plus de renseignements, n'hésitez pas à joindre Katherine, votre conseillère Maisons d'en France Sud-Ouest, agence de CASTETS.
Référence : KF-SME-600
Mandat : KF-SME-600
Plus d'informations
-
Descriptif
- Nbre. de chambres : 3
- Nb. de pièces : 5
-
Conditions
- Prix du terrain : 111 000 €
- Honoraires à charge de : vendeur
-
Superficies
- Superficie terrain : 764 m²
- Surface habitable : 100 m²
Localisation
Contactez nous
Pour plus d'informations sur cette annonce, n'hésitez pas à nous contacter