Vente
Maison neuve
à
Le Houga
234 774 €
Le Houga (32460)
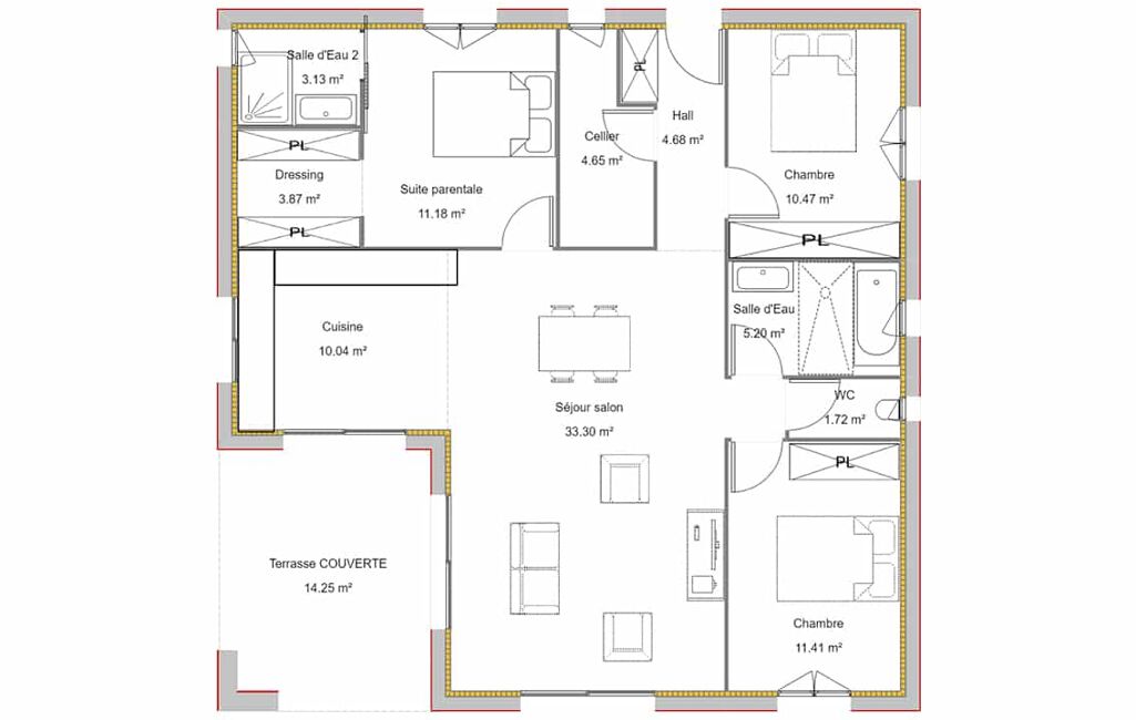
Sur un terrain de 746 m² se situant sur la commune de Le Houga à 30 minutes de Mont de Marsan, nous vous proposons une construction de maison contemporaine de 128 m² habitables.
Comprenant 4 chambres dont 1 chambre avec dressing bordée par une salle de bains avec douche, double vasque et un bureau. Un bel espace de vie est réservé au salon, salle à manger, cuisine.
En complément, un cellier est attenant à la cuisine et au garage (25m2).
Les prestations restent modulables selon vos souhaits. Toutes nos maisons répondent aux exigences de la Réglementation Environnementale 2020.
Carlos GARCIA de notre agence MAISONS D’EN FRANCE SUD OUEST de St pierre du Mont se tient à votre disposition pour vous présenter dans les détails ce projet de construction ainsi que les garanties propres à notre marque.
Prévoir un budget de 234 774 € pour l’achat du terrain, la réalisation de la maison près à décorer, les garanties d’achèvement et de livraison à prix et délais convenus, l’assurance dommages ouvrage, les frais de notaire et de raccordements. Nous ne sommes pas mandatés pour réaliser la vente du terrain. Il restera à votre charge les touches finales, à savoir les peintures, la cuisine, les clôtures.
Référence annonce : CG-Houga2506 Maelly
Mandat : CG-Houga2506maelly
Plus d'informations
-
Descriptif
- Nbre. de chambres : 4
- Nb. de pièces : 6
-
Conditions
- Prix du terrain : 14 174 €
- Honoraires à charge de : vendeur
-
Superficies
- Superficie terrain : 746 m²
- Surface habitable : 128 m²
Localisation
Contactez nous
Pour plus d'informations sur cette annonce, n'hésitez pas à nous contacter