Vente
Maison neuve
à
Saint-Cricq-Villeneuve
228 260 €
Saint-Cricq-Villeneuve (40190)
Votre constructeur de maisons à Saint Pierre du Mont, Maisons d’en France Sud-Ouest, vous présente un terrain hors lotissement d’une superficie de 1 985 m² sur la commune de St Cricq Villeneuve. Idéalement situé au calme proche de Villeneuve de Marsan.
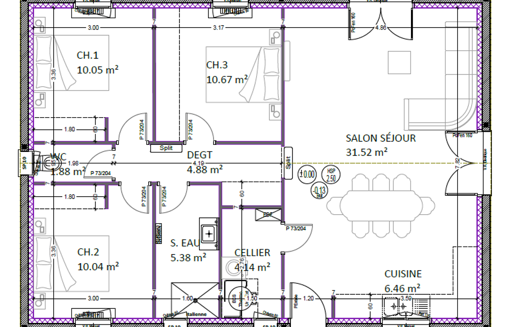
Nous vous proposons une surface habitable de 95 m² avec un garage attenant de 20 m². La maison est d’une forme Architecturale simple en quatre pentes de toiture. Elle est composée de trois belles chambres avec placard, d’un espace jour très lumineux avec de grandes ouvertures coulissantes en aluminiums.
Le choix des sanitaires et du carrelage se fera ensemble chez nos fournisseurs.
La construction de votre maison respectera la RE 2020 ce qui lui permettra de bénéficier entre autres d’une domotique dernier cri ainsi que d’une faible consommation d’énergie.
Le prix de 228 260 € comprend : L’achat du terrain, la réalisation de la maison près à décorée, les garanties d’achèvement et de livraison à prix et délais convenus, l’assurance dommages ouvrage, les frais de notaire et de raccordements. Nous ne sommes pas mandatés pour réaliser la vente du terrain. Il restera à votre charge les touches finales, à savoir les peintures, la cuisine et les clôtures.
Pour toutes informations complémentaires, n’hésitez pas à contacter Carlos notre Conseiller habitat Maisons d’en France.
Référence annonce : CG-ST cricq 2506Marie
Mandat : CG-St Cricq 06Marie
Plus d'informations
-
Descriptif
- Nbre. de chambres : 3
- Nb. de pièces : 4
-
Conditions
- Prix du terrain : 53 000 €
- Honoraires à charge de : vendeur
-
Superficies
- Superficie terrain : 1985 m²
- Surface habitable : 95 m²
Localisation
Contactez nous
Pour plus d'informations sur cette annonce, n'hésitez pas à nous contacter