Vente
Maison neuve
à
Vielle-Saint-Girons
238 900 €
Vielle-Saint-Girons (40560)
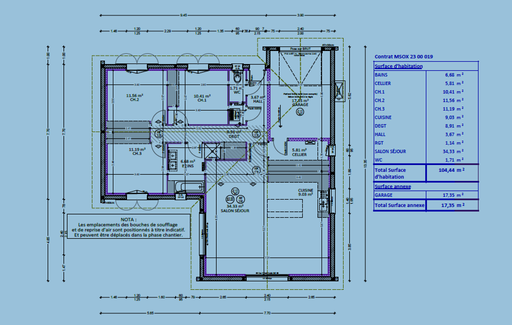
Sur la commune de Vielle-Saint-Girons, à quelques kilomètres de l’océan et de ses belles plages, à deux pas des commerces et services, Maisons d’en France Sud-Ouest vous a déniché un beau terrain et vous propose d’y construire cette maison neuve ultra lumineuse de 85m².
Optimisée et fonctionnelle, cette maison se compose d’une pièce de vie de près de 42m² avec cuisine ouverte. Luminosité assurée avec une triple exposition à la lumière naturelle.
Les trois chambres équipées soit d’un placard intégré, soit d’un dressing, accueilleront aisément une famille de deux enfants.
Doté d'un réglage pièce par pièce, le système de chauffage suggéré vous assurera le plus grand confort dans le respect de la RE 2020, tout en vous assurant de très substantielles économies, tant en chauffage qu’en rafraichissement.
Maison prête à décorer, ne vous resterons que les peintures, les revêtements des chambres et la cuisine. Votre talent fera le reste !
Plan, disposition, système de chauffage, tout reste entièrement personnalisable selon vos envies, de vos besoins, de votre budget.
Terrain viabilisé de 546 m², selon disponibilité de notre partenaire foncier. Non mandaté pour la vente du terrain.
Maison + terrain + frais de notaire + terrassement + raccordements à partir de 238 900 euros. Dommages-ouvrage et garanties de parfait achèvement et de livraison à prix et délais convenus incluses.
Pour plus de renseignements, n'hésitez pas à joindre Katherine, votre conseillère Maisons d'en France Sud-Ouest.
Référence : KF-VSG-889
Mandat : KF-VSG-889
Plus d'informations
-
Descriptif
- WC séparés
- Nbre. de chambres : 3
- Salle à manger
- Nb. de pièces : 4
-
Conditions
- Prix du terrain : 87 000 €
- Honoraires à charge de : vendeur
-
Superficies
- Superficie terrain : 546 m²
- Surface habitable : 85 m²
Localisation
Contactez nous
Pour plus d'informations sur cette annonce, n'hésitez pas à nous contacter