Vente
Maison neuve
à
Castets
209 000 €
Castets (40260)
Maisons d'en France vous propose aujourd'hui un projet de construction à Castets, ville située à moins de 20 km des plages, et 30 minutes de Bayonne par l'autoroute !
La ville de Castets est pourvue de commerces et centres médicaux et culturels (grande surface, boulangeries délicieuses, centre médicalisé, cinéma, école...).
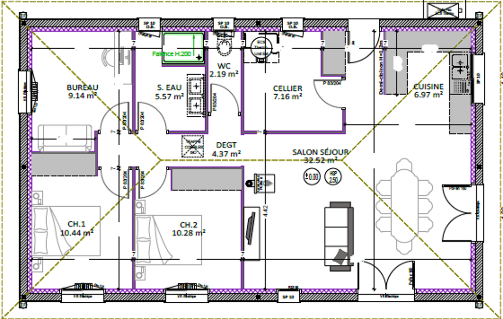
Côté maison, nous vous proposons ce projet d'un peu plus de 86 m² avec son salon/ séjour/ cuisine de presque 40 m².
Le coin salon et salle à manger serait bercé de lumière avec ses 2 ouvertures bénéficiant d'une double exposition qui pourraient donner sur une terrasse à aménager ultérieurement.
Un cellier dépassant les 7 m² se situerait proche de l'entrée ainsi que de la cuisine afin de vous offrir un espace de rangement intéressant.
Côté nuit, 3 chambres ont été prévues avec une salle d'eau commune comprenant une double vasque ainsi qu'une douche à l'italienne.
Le système de chauffage vous est proposé avec climatisation réversible, type AIR/AIR.
Carrelage dans la zone jour inclus, centralisation électrique pour l'ensemble des volets roulants.
La construction de votre maison respectera la RE 2020 ce qui lui permettra de bénéficier entre autre, d'une domotique dernier cri ainsi que d'une faible consommation d'énergie.
A noter qu'il vous sera possible d'ajouter par exemple un garage/ pièce(s) complémentaire(s) ou d'adapter (réduire ou agrandir) les plans à vos envies (plus ou moins value en fonction).
Le prix comprend:
- Terrain + maison - garantie d'achèvement et de livraison à prix et délais convenus incluse - DO incluse - Frais de notaire inclus - raccordements inclus - Taxes PFAC et aménagement incluses - visuel non contractuel - Non mandaté pour réaliser la vente du terrain - Selon disponibilité de notre partenaire foncier - Les informations sur les risques auxquels ce bien est exposé sont disponibles dur le site Géorisques https://www.georisques.gouv.fr/
Il restera à votre charge les touches finales, à savoir les parquets dans les chambres, la peinture, la cuisine et le portail.
Pour toute information complémentaire, n'hésitez pas à contacter Ludwig MOLL, Conseiller habitat Maisons d'en France à Castets.
LM1-CASTETS
Mandat : LM1-CASTETS
Plus d'informations
-
Conditions
- Prix du terrain : 60 000 €
- Honoraires à charge de : vendeur
-
Superficies
- Superficie terrain : 600 m²
- Surface habitable : 86 m²
-
Descriptif
- Nb. de pièces : 4
Localisation
Contactez nous
Pour plus d'informations sur cette annonce, n'hésitez pas à nous contacter