Vente
Maison neuve
à
Campagne
193 700 €
Campagne (40090)
Votre constructeur de maisons à Saint Pierre du Mont, Maisons d’en France Sud Ouest, vous présente ce terrain entièrement viabilisé (EDF, EAU, Tout à l'égout…), sélectionné avec ses partenaires fonciers, d’une superficie de 625m² à 55 000 euros, dans la belle ville de Campagne.
Ce terrain constructible, au cœur d'un petit lotissement, vous séduira par son environnement calme et ses commerces de proximité, une école et des arrêts de bus.
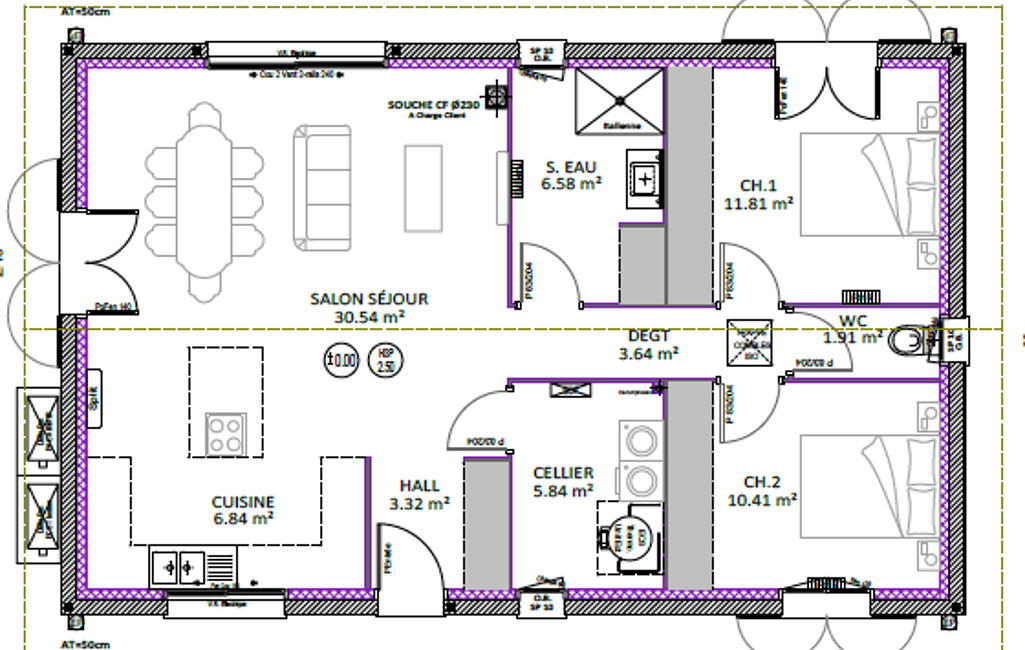
A seulement 10 minutes de Mont de Marsan, nous vous proposons cette future maison moderne d'environs 80m². Elle dispose de 2 belles chambres, une cuisine ouverte sur salon séjour lumineux pour profiter du jardin.
Tout est modifiable selon vos envies!!
Terrain + maison, prix à partir de 193 700 euros - Garantie d'achèvement et de livraison à prix et délais convenus incluse - Dommage Ouvrage incluse - Frais de notaire non inclus - Visuel non contractuel - Non mandaté pour la vente de ce terrain.
Pour plus de renseignements, n’hésitez pas à joindre Stéphanie, votre conseillère Maisons d'en France.
Référence : SC-CAMPAGNE-2023TM
Mandat : SC-CAMPAGNE-2023TM
Plus d'informations
-
Descriptif
- Nbre. de chambres : 2
- Nb. de pièces : 3
-
Conditions
- Prix du terrain : 55 000 €
- Honoraires à charge de : vendeur
-
Superficies
- Superficie terrain : 625 m²
- Surface habitable : 80 m²
Localisation
Contactez nous
Pour plus d'informations sur cette annonce, n'hésitez pas à nous contacter