Vente
Maison neuve
à
Castets
186 000 €
Castets (40260)
Maisons d'en France vous propose aujourd'hui un projet de construction à Castets, ville située à moins de 20 km des plages, et 30 minutes de Bayonne par l'autoroute !
La ville de Castets est pourvue de commerces et centres médicaux et culturels (grande surface, boulangeries délicieuses, centre médicalisé, cinéma, école...).
A noter, outre les prestations détaillées ci dessous, le projet comprend la dommage ouvrage, le cout des frais de notaire estimés ainsi qu'une une estimation approchante des raccordements indispensables au projet.
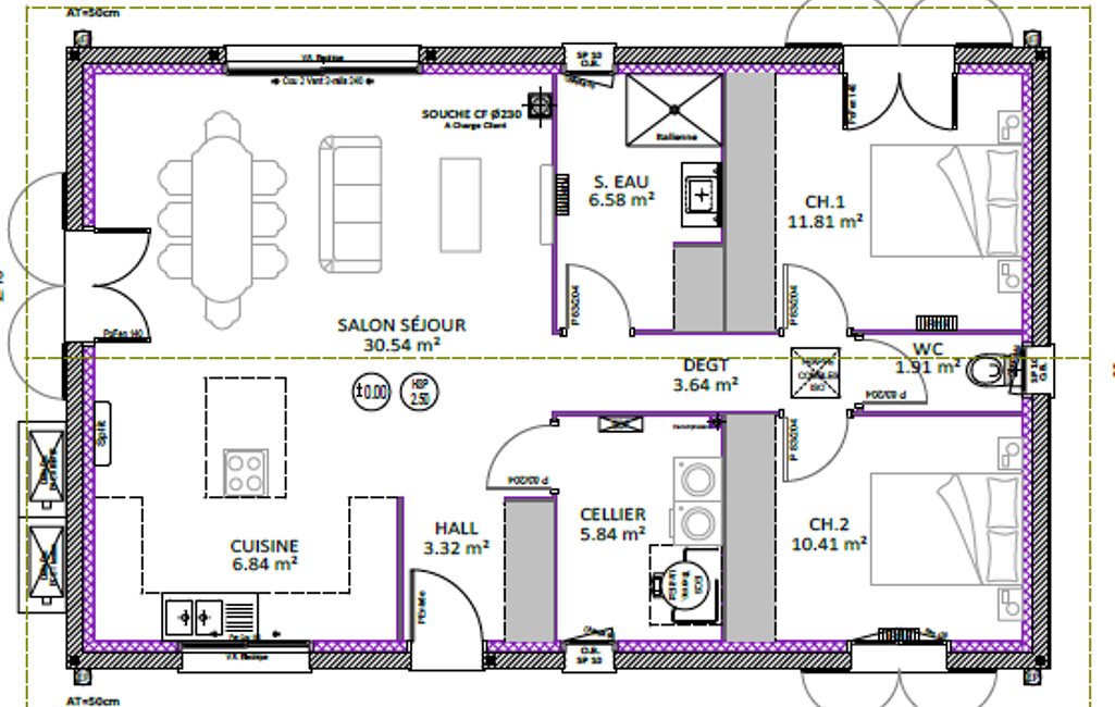
Concernant l'aménagement de la maison, ajustable à souhait avec une troisième chambre ou un garage par exemple (prix évolutif en fonction), cette dernière comprendrait une surface de 70m², avec une belle pièce à vivre lumineuse de plus de 36 m², hall inclus!
2 chambres seraient prévues côté nuit avec un WC séparé et une salle d'eau.
Enfin un cellier permettrait un espace de rangement complémentaire.
Le système de chauffage vous est proposé avec climatisation réversible, type AIR/AIR.
Le Carrelage dans la zone jour serait inclus.
La construction de votre maison respectera la RE 2020 ce qui lui permettra de bénéficier entre autre, d'une domotique dernier cri ainsi que d'une faible consommation d'énergie.
Le prix comprend une estimation réaliste des éléments suivants:
- Terrain + maison - garantie d'achèvement et de livraison à prix et délais convenus incluse - DO incluse - Frais de notaire inclus - raccordements inclus - Taxes PFAC et aménagement incluses - visuel non contractuel - Non mandaté pour réaliser la vente du terrain - Selon disponibilité des terrains - Les informations sur les risques auxquels ce bien est exposé sont disponibles dur le site Géorisques https://www.georisques.gouv.fr/
Il restera à votre charge les touches finales, à savoir les parquets dans les chambres, la peinture, la cuisine et les clôtures.
Pour toute information complémentaire, n'hésitez pas à contacter Ludwig MOLL, Conseiller habitat Maisons d'en France à Castets.
LM3-CASTETS
Mandat : LM3-CASTETS
Plus d'informations
-
Conditions
- Prix du terrain : 60 000 €
- Honoraires à charge de : vendeur
-
Superficies
- Superficie terrain : 600 m²
- Surface habitable : 70 m²
-
Descriptif
- Nb. de pièces : 3
Localisation
Contactez nous
Pour plus d'informations sur cette annonce, n'hésitez pas à nous contacter