Vente
Maison neuve
à
Meilhan-sur-Garonne
166 786 €
Meilhan-sur-Garonne (47180)
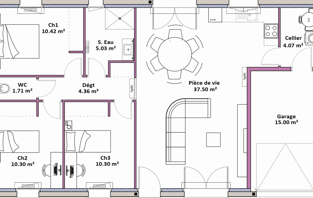
Votre constructeur de maisons individuelles les maisons d’en France SUD OUEST, vous propose le modèle PARIS, un plan de maison 3 chambres avec garage.
Le plan de la maison Paris a été pensé pour offrir des volumes généreux à ses occupants, tout en proposant une maison de 84m² fonctionnelle et lumineuse
Les atouts de ce projet :
- Haute performance énergétique (RE 2020)
- Chauffage et climatisation pour un confort hiver comme été
- Domotique
- Finition enduit gratté
- Carrelage sur toute la superficie habitable
- Faïence de la salle de bains et sanitaires inclus
Retrouvez d'autres idées de plans sur notre site internet et contactez nous pour discuter de votre projet de construction.
Pour une étude personnalisée, n'hésitez pas à nous contacter ! Votre maison à partir de 164786 € (terrain + maison - garantie d'achèvement et de livraison à prix et délais convenus incluse - DO incluse - Frais de notaire non inclus - Hors adaptation au sol et raccordements - visuel non contractuel - non mandaté pour réaliser la vente du terrain vu avec nos partenaires).
Référence : EE- Meilhan-sur-Garonne-106TM
Mandat : EE-Meilhan-sur-Garonne-106TM
Plus d'informations
-
Descriptif
- Nbre. de chambres : 3
- Nb. de pièces : 4
-
Conditions
- Prix du terrain : 39 380 €
- Honoraires à charge de : vendeur
-
Superficies
- Superficie terrain : 895 m²
- Surface habitable : 84 m²
Localisation
Contactez nous
Pour plus d'informations sur cette annonce, n'hésitez pas à nous contacter