Vente
Maison neuve
à
Latrille
183 450 €
Latrille (40800)
Votre constructeur de maisons à Saint Pierre du Mont, Maisons d’en France Sud-Ouest, vous présente un splendide terrain d’une superficie de 1 500 m², dans la belle commune de Latrille dans les Landes.
Ce terrain situé entre Pau et Mont de Marsan vous séduira par son emplacement privilégié.
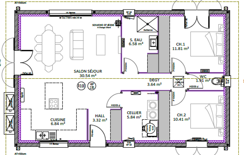
Nous vous proposons cette maison de 60 m² avec un garage attenant de 15 m².
La maison est d’une forme Architecturale conforme à la région avec la possibilité de personnaliser le plan. Elle est composée de deux belles chambres avec placard et d’une cuisine ouverte sur séjour. Le système de chauffage vous est proposé en pompe à chaleur air/air.
La construction de votre maison respectera la RE 2020 ce qui lui permettra de bénéficier entre autres d’une domotique dernier cri ainsi que d’une faible consommation d’énergie.
Prévoir un budget de 183 450 € pour l’achat du terrain, la réalisation de la maison prêt à décorer, les garanties d’achèvement et de livraison à prix et délais convenus, l’assurance dommages ouvrage, les frais de notaire et de raccordements.
Nous ne sommes pas mandatés pour réaliser la vente du terrain. Il restera à votre charge les touches finales, à savoir les peintures intérieures et la cuisine.
Pour toute information complémentaire, n’hésitez pas à contacter Carlos GARCIA notre Conseiller habitat Maisons d’en France.
Mandat : CG-Latrille-Mel
Plus d'informations
-
Descriptif
- Nbre. de chambres : 2
- Nb. de pièces : 3
-
Conditions
- Prix du terrain : 60 000 €
- Honoraires à charge de : vendeur
-
Superficies
- Superficie terrain : 1500 m²
- Surface habitable : 60 m²
Localisation
Contactez nous
Pour plus d'informations sur cette annonce, n'hésitez pas à nous contacter