Vente
Maison neuve
à
Saint-Julien-en-Born
718 000 €
Saint-Julien-en-Born (40170)
Maisons d'en France vous propose aujourd'hui ce projet de construction d'exception au cœur d'un havre de paix situé au bourg de Saint Julien en Born.
A 5 mn de la plage de Contis, ce beau terrain plat de 2.000 m² dont 1.649 m² constructibles vous séduira par son calme environnant, sa proximité des commerces et services ainsi que ses pistes cyclables.
Côté Maison, vous serez séduit par l'architecture résolument moderne de ce projet, qu'il s'agisse de ses parements habillant à merveille cette villa ou de sa disposition intérieure qui reste néanmoins, adaptable à souhait selon votre manière de vivre.
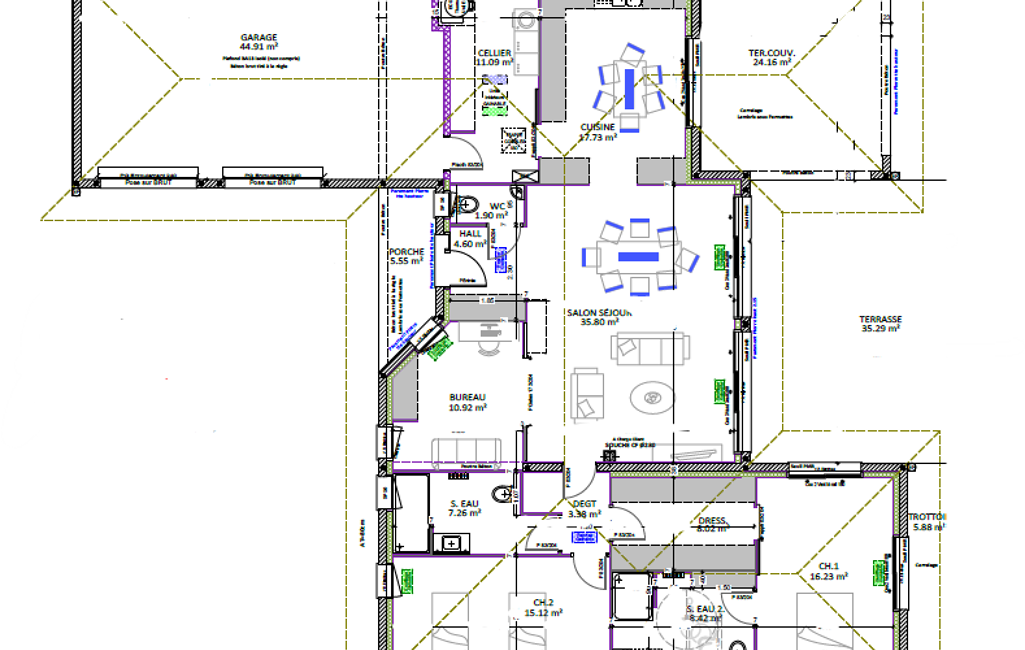
Cette maison de 140 m² vous est proposée avec un double garage avoisinant les 45 m² et des terrasses couvertes et non couvertes de plus de 60 m².
Un salon/séjour/cuisine avec entrée séparée de presque 60 m² permettra un confort optimal pour vos repas en famille ou entre amis, faisant face aux terrasses extérieures.
Le cellier, proche de la cuisine semi fermée, donnera sur le double garage afin d'assurer une proximité intérieur/extérieur.
Un bureau de 11m² complétera le séjour.
Côté nuit, une suite parentale de 32 m² a été imaginée, avec un dressing de 8 m², une salle d'eau autonome de la même surface et une chambre de 16 m².
Une seconde chambre de plus de 15 m² complétera le tableau avec une seconde salle d'eau commune.
Le système de chauffage vous est proposé en gainable avec climatisation.
Carrelage et/ou parquet dans les chambres inclus, centralisation électrique pour l'ensemble des volets roulants.
La construction de votre maison respectera la RE 2020 ce qui lui permettra de bénéficier entre autre, d'une domotique dernier cri ainsi que d'une faible consommation d'énergie.
Le prix comprend:
- Terrain + maison - garantie d'achèvement et de livraison à prix et délais convenus incluse - DO incluse - Frais de notaire inclus - raccordements inclus -Estimation viabilisation- Taxes PFAC et aménagement incluses - visuel non contractuel - Non mandaté pour réaliser la vente du terrain - Selon disponibilité de notre partenaire foncier - Les informations sur les risques auxquels ce bien est exposé sont disponibles dur le site Géorisques https://www.georisques.gouv.fr/
Il restera à votre charge les touches finales, la cuisine, les clôtures et le portail.
Pour toute information complémentaire, n'hésitez pas à contacter Ludwig MOLL, Conseiller habitat Maisons d'en France.
Référence annonce: LM1-StJulienborn
Mandat : LM1-St Julienborn
Plus d'informations
-
Descriptif
- Nbre. de chambres : 3
- Nb. de pièces : 4
-
Conditions
- Prix du terrain : 276 900 €
- Honoraires à charge de : vendeur
-
Superficies
- Superficie terrain : 2000 m²
- Surface habitable : 140 m²
Localisation
Contactez nous
Pour plus d'informations sur cette annonce, n'hésitez pas à nous contacter