Vente
Maison neuve
à
Bénesse-Maremne
430 000 €
Bénesse-Maremne (40230)
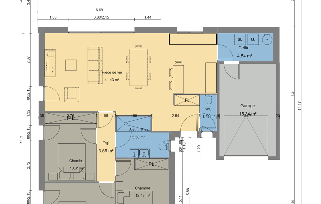
Sur la commune de Benesse Maremne, Maisons d'en France vous propose cet exemple de projet de construction entièrement modulable et personnalisable, tant au niveau des plans que des prestations. Celui ci est composé de 3 chambres et d'une belle pièce de vie confortable et lumineuse. Sa forme en L permets une véritable séparation entre l'espace jour et le coin nuit. Le + de ce projet : une grande terrasse couverte de 23 m². Répondant aux dernières normes environnementales, ce projet sera, de plus, économe en énergie ! Terrain de 592 m² entièrement viabilisé . Le prix comprend le terrain, la construction, les frais de notaire, les raccordements, et la taxe de raccordement aux égouts. Pour plus de renseignements n'hésitez pas à joindre votre conseiller Fabrice - Maisons d'en France St Paul les DAX. Assurance dommages ouvrage et garantie de livraison incluses. Non mandaté pour la vente du terrain - Sous réserve de disponibilité auprès de notre partenaire foncier.
Mandat : FNBENESSE23
Plus d'informations
-
Descriptif
- Nb. de WC : 2
- Garage
- Terrasse
- WC séparés
- Nbre. de chambres : 3
- Nb. de WC séparés : 1
- Salle à manger
- Nb. de pièces : 4
-
Conditions
- Prix du terrain : 223 000 €
- Honoraires à charge de : vendeur
-
Superficies
- Superficie terrain : 592 m²
- Surface habitable : 92 m²
Localisation
Contactez nous
Pour plus d'informations sur cette annonce, n'hésitez pas à nous contacter