Vente
Maison neuve
à
Seignosse
499 000 €
Seignosse (40510)
Projet de construction.
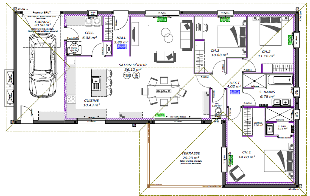
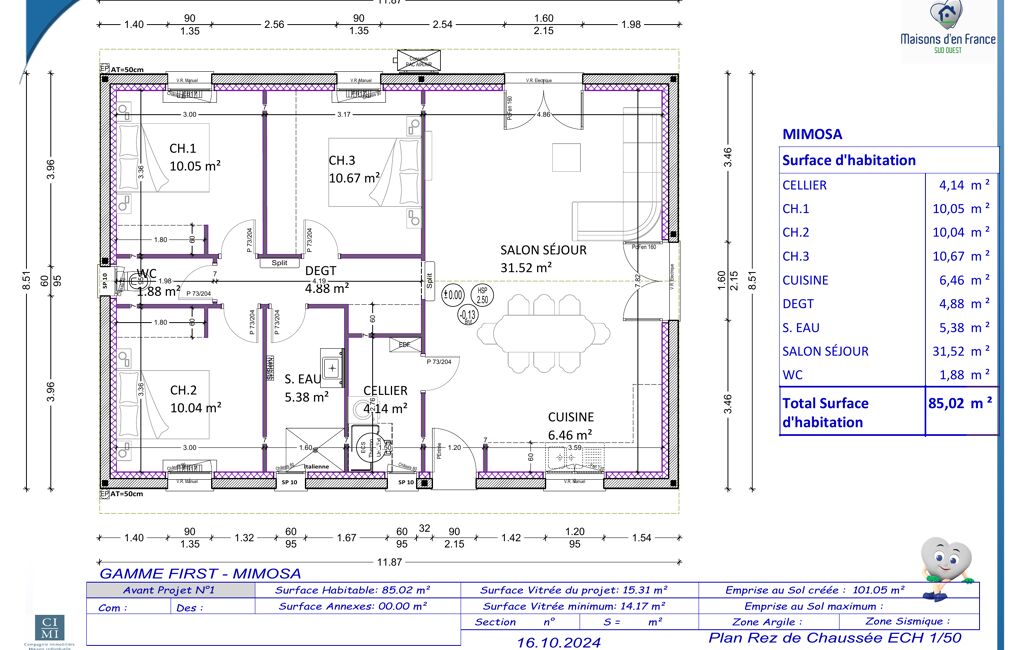
Au bourg de Seignosse, proche des commodités, au sein d'un petit lotissement, sur un terrain de 707 m², Maisons d'en France, constructeur de maisons sur mesure, vous projet de 85 m² disposant d' une belle pièce de vie avec une cuisine ouverte et cellier attentant, pour une superficie de 38 m². L'espace nuit est lui composé de 3 belles chambres avec placards, un WC séparé et une salle d'eau.
Vous serez séduit par la luminosité de la pièce de vie et l'optimisation de l'aménagement.
Pour plus d'information, contactez Marlène DUBERTRAND à l'agence de SAINT PAUL LES DAX, qui vous guidera dans vos démarches et vous accompagnera dans la création de votre projet, aux normes RE 2020.
Le prix comprend le terrain viabilisé, frais de notaire. Maison ( hors peinture ), Assurance Dommages Ouvrages, Garantie de livraison, Terrassement & Raccordements.
Plusieurs autres lots sont disponibles.
Non mandaté pour la vente du terrain - Sous réserve de disponibilité auprès de notre partenaire foncier.
Ref : SEIGNOSSE - MD
Mandat : MD-SEIGNOSSE2702
Plus d'informations
-
Descriptif
- Nbre. de chambres : 3
- Nb. de pièces : 4
-
Conditions
- Prix du terrain : 35 000 €
- Honoraires à charge de : vendeur
-
Superficies
- Superficie terrain : 707 m²
- Surface habitable : 85 m²
Localisation
Contactez nous
Pour plus d'informations sur cette annonce, n'hésitez pas à nous contacter