Vente
Maison neuve
à
Saint-Jean-de-Marsacq
359 000 €
Saint-Jean-de-Marsacq (40230)
Maisons d'en France vous propose aujourd'hui un projet de construction sur la commune de St Jean de Marsacq, idéalement situé à 20 minutes des plages, entre Bayonne et Dax.
Ce lotissement de 21 lots, prêt à accueillir votre maison est également particulièrement bien positionné, au cœur du bourg, entre boulangerie, épicerie et commerces de proximité.
Côté construction, cette maison au design épuré et résolument contemporain, aura pour atout majeur de concilier confort et fonctionnalité.
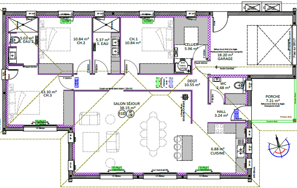
Ce projet, adaptable à souhait et selon vos envies, présente un salon/séjour cuisine de plus de 45m² faisant suite à une entrée de plus de 3m² avec un WC discret sur la droite.
Un porche couvert de plus de 7m² sera un allié précieux lorsque le temps sera capricieux.
Cet espace de vie bénéficiera d'une luminosité à faire rougir Versailles par le biais de ses 3 baies de 2 mètres auxquelles viendront s'ajouter deux fenêtres fixes en complément.
Depuis cet espace, une entrée autonome a été prévue vers le garage et vers le cellier de presque 6m².
Côté nuit, 2 chambres de presque 11 m² entourant une salle d'eau commune se détacheront d'une suite parentale disposant d'une salle d'eau privée et d'un espace de rangement.
Le système de chauffage vous est proposé en gainable avec climatisation.
Carrelage et parquet dans les chambres inclus, centralisation électrique pour l'ensemble des volets roulants.
La construction de votre maison respectera la RE 2020 ce qui lui permettra de bénéficier entre autre, d'une domotique dernier cri ainsi que d'une faible consommation d'énergie.
Le prix comprend:
- Terrain + maison - garantie d'achèvement et de livraison à prix et délais convenus incluse - DO incluse - Frais de notaire inclus - raccordements inclus -Estimation viabilisation- Taxes PFAC et aménagement incluses - visuel non contractuel - Non mandaté pour réaliser la vente du terrain - Selon disponibilité de notre partenaire foncier - Les informations sur les risques auxquels ce bien est exposé sont disponibles dur le site Géorisques https://www.georisques.gouv.fr/
Il restera à votre charge les touches finales, à savoir les peintures, la cuisine, les clôtures et le portail.
Pour toute information complémentaire, n'hésitez pas à contacter Ludwig MOLL, conseiller habitat Maisons d'en France.
Référence annonce: LM6-StJEANMARS
Mandat : LM6-StJEANMARS
Plus d'informations
-
Descriptif
- Nbre. de chambres : 3
- Nb. de pièces : 4
-
Conditions
- Prix du terrain : 116 000 €
- Honoraires à charge de : vendeur
-
Superficies
- Superficie terrain : 509 m²
- Surface habitable : 112 m²
Localisation
Contactez nous
Pour plus d'informations sur cette annonce, n'hésitez pas à nous contacter