Vente
Maison neuve
à
Linxe
335 000 €
Linxe (40260)
Sur la très jolie commune de Linxe, au cœur d’un lotissement à taille humaine, Maison d’en France vous a déniché ce terrain de 974 m², entièrement viabilisé. A 500 m du centre de ce bourg en pleine expansion, de ses commerces et services. Idéalement situé à 10 mn de Castets, 15 mn de l’A63, 10 mn de l’océan.
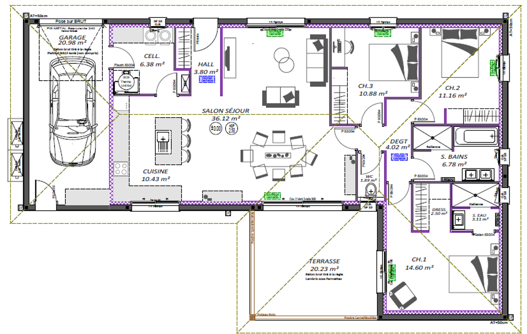
Maisons d’en France Sud-Ouest vous propose d’y construire cette maison neuve lumineuse de 90m². Optimisée et fonctionnelle, elle se compose d’une pièce de vie avec cuisine ouverte et attenante au cellier et au garage. Cette pièce de vie profite d’une triple exposition à la lumière naturelle et se prolonge d’une belle terrasse couverte orientée sud-ouest.
Côté nuit deux chambres sont équipées d’un placard intégré, la troisième est pensée comme une suite parentale avec cabinet de toilette privatif.
Doté d'un réglage pièce par pièce, le système de chauffage réversible proposé vous assurera le plus grand confort tout en vous assurant de substantielles économies.
Plan, disposition, système de chauffage, tout reste entièrement personnalisable selon vos envies.
Terrain viabilisé de 974 m², selon disponibilité de notre partenaire foncier. Non mandaté pour la vente du terrain.
Maison (dommage ouvrage et garantie de livraison incluses) + terrain + frais de notaire + terrassement + raccordements à partir de 335 000 euros.
Pour plus de renseignements, n'hésitez pas à joindre Katherine Ferrère, votre conseillère Maisons d'en France Sud-Ouest.
Référence : KF-LINXE-401b
Mandat : KF-LINXE-401b
Plus d'informations
-
Descriptif
- Nbre. de chambres : 3
- Nb. de pièces : 5
-
Conditions
- Prix du terrain : 140 256 €
- Honoraires à charge de : vendeur
-
Superficies
- Superficie terrain : 974 m²
- Surface habitable : 91 m²
Localisation
Contactez nous
Pour plus d'informations sur cette annonce, n'hésitez pas à nous contacter