Vente
Terrain
à
Azur
162 000 €
Azur (40140)
Terrain à bâtir à Azur
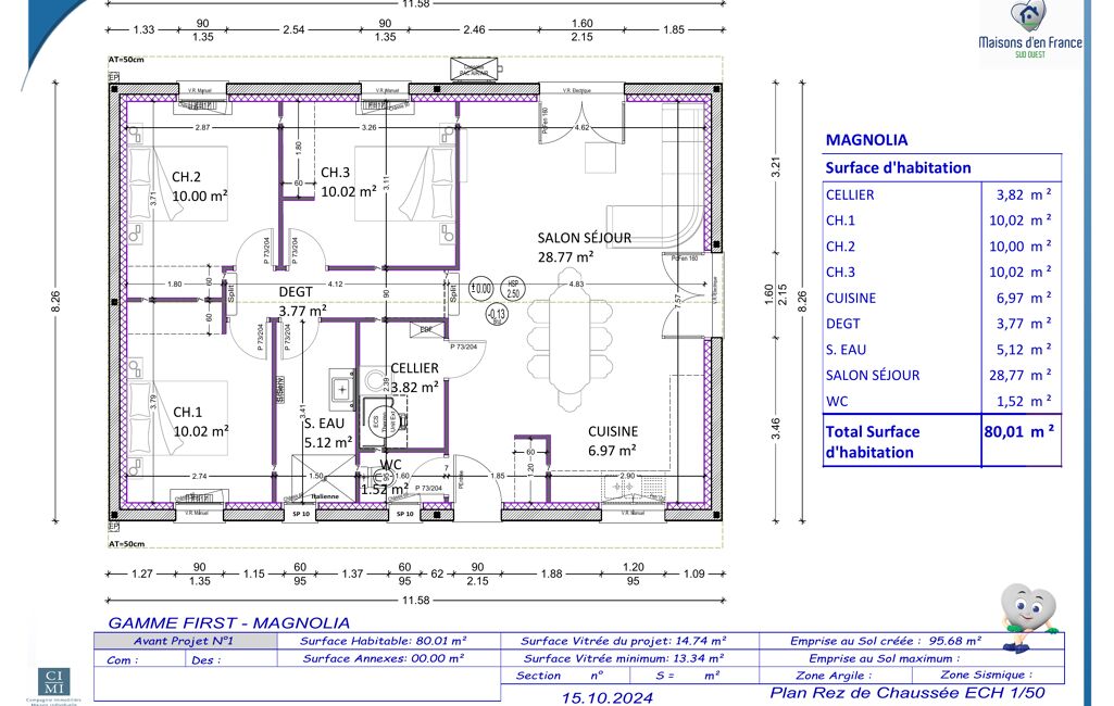
Marlène DUBERTRAND de l'agence MAISONS D'EN FRANCE de SAINT PAUL LES DAX, constructeur de maison individuelles depuis 30 ans, vous propose de découvrir ce beau terrain d'environ 611 m², sur la commune d'Azur..
Idéalement situé dans un petit lotissement, en lisière de foret.
Rare sur le secteur !
Contactez vite Marlène DUBERTRAND, agence de Saint Paul les Dax., afin qu'elle vous guide dans les démarches et vous accompagne dans ce projet de construction personnalisé, aux normes RE2020.
Ref MD-AZUR
Mandat : MD-AZURTERRAIN
Plus d'informations
-
Conditions
- Honoraires à charge de : vendeur
-
Superficies
- Superficie terrain : 611 m²
Localisation
Contactez nous
Pour plus d'informations sur cette annonce, n'hésitez pas à nous contacter
Maisons d’en France Sud Ouest Dax
Annonce 69 /
618