Vente
Maison
à
Albi
95 000 €
Albi (81000)
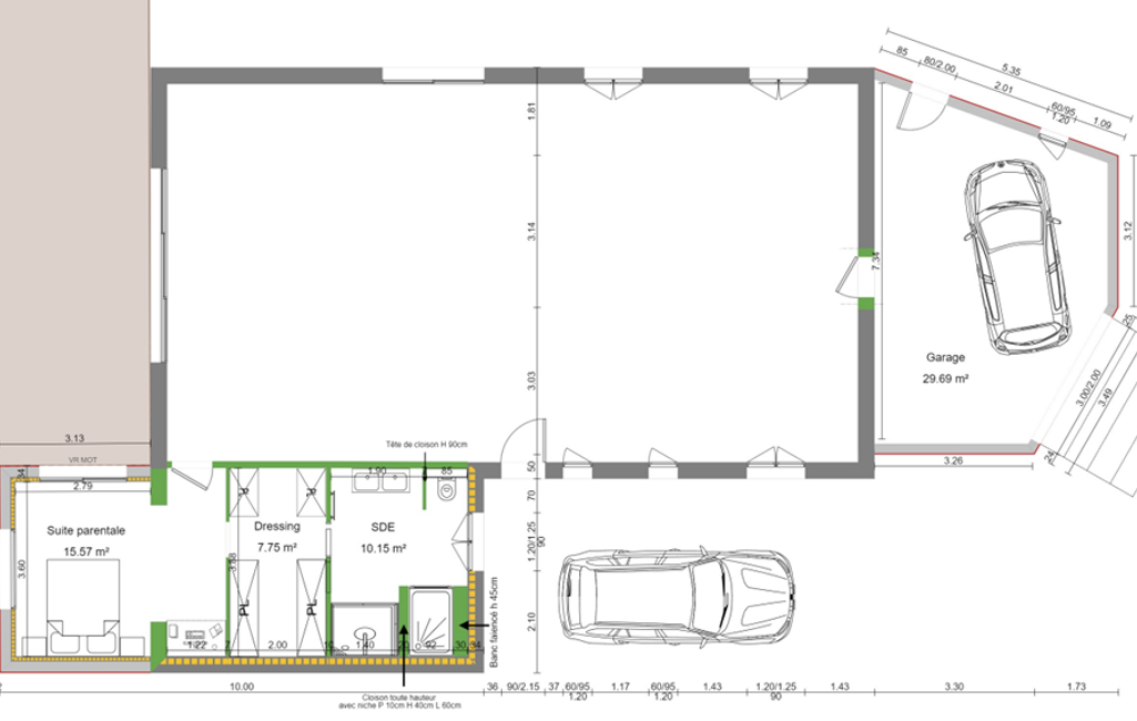
Projet d'Extension/Rénovation comprenant la création d'une suite parentale 33,5m² (Chambre, dressing, SDE) et d'un garage de 30m².
Projet clé en main du terrassement en passant par la maçonnerie, plâtrerie, menuiseries, sanitaires, etc. jusqu'à la peinture
Vous aussi vous souhaitez agrandir ? Au sol ou dans les airs nous sommes spécialiste de l'extension/surélévation/rénovation de l'habitat.
Contactez nous LOGIS CONSEIL Rénovation (ALBI, CASTRES, TOULOUSE) https://logis-conseil-renovation.fr
Tel: Jessy GINESTE 07-88-06-44-35 ou bien 05-61-30-97-80
Mandat : JG01
Diagnostic de Performance Énergétique (DPE)
Plus d'informations
-
Descriptif
- Nb. de WC : 1
- Nb. de salles d'eau : 1
- Nbre. de chambres : 1
- Stationnement : 1
- Nb. de pièces : 3
-
Etat
- État general : Neuf
- État intérieur : Neuf
- Année de rénovation : 2025
- Année de construction : 2020
-
Equipement
- Chauffage : Electrique
- Double vitrage
-
Conditions
- Honoraires : 1 €
- Honoraires à charge de : acquéreur
-
Informations Energétiques
- Certifications : RE2020
-
Superficies
- Surface habitable : 34 m²
Localisation
Contactez nous
Pour plus d'informations sur cette annonce, n'hésitez pas à nous contacter
Jessy GINESTE
Annonce 16 /
285