Vente
Maison neuve
à
Villeneuve les Bouloc
260 000 €
Villeneuve les Bouloc (31620)
Et si vous pouviez enfin profiter d’une terrasse et d’un jardin …LOGIS CONSEIL CONSTRUCTION , vous accompagne pour réaliser votre projet de construction sur la commune de VILLENEUVE LES BOULOC
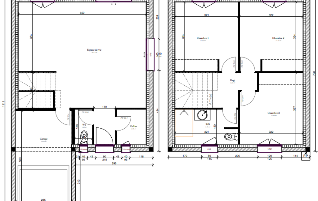
Belle maison lumineuse, T4 de 90m² + garage.
Séjour ouvert sur jardin par baies vitrées en alu.
Cuisine ouverte avec un accès direct au cellier.
Trois chambres .
Salle de bain avec douche à l'italienne et meuble double vasque.
WC indépendant.
Prestations de qualité avec volets roulants électriques, cellier et chauffage conforme à la norme RE 2020.
Le coût du projet est basé sur la construction d'une maison réalisée par LOGIS CONSEIL comprenant terrain, sur un terrain proposé par nos partenaires fonciers sous réserve de disponibilité .
D’autres terrains disponibles, photos en exemple et non contractuelles.
Visuels non contractuels.
N'hésitez plus, devenez propriétaires
Pour tout renseignement contactez Audrey au O6.75.94.63.00 pour une étude personnalisée.
Mandat : AB4
Plus d'informations
-
Descriptif
- Garage
- Nb. de salles de bain : 1
- WC séparés
- Nbre. de chambres : 3
- Nb. de WC séparés : 1
- Nb. de pièces : 4
-
Conditions
- Honoraires : 7 000 €
- Prix du terrain : 75 000 €
- Honoraires à charge de : acquéreur
-
Etat
- État general : Neuf
- État intérieur : Neuf
- Année de construction : 2025
-
Superficies
- Superficie terrain : 370 m²
- Surface habitable : 90 m²
-
Extérieur
- Jardin
-
Informations Energétiques
- Certifications : RE2020
Localisation
Contactez nous
Pour plus d'informations sur cette annonce, n'hésitez pas à nous contacter