Vente
Maison de village
à
Saint-Amans-des-Cots
124 000 €
Saint-Amans-des-Cots (12460)
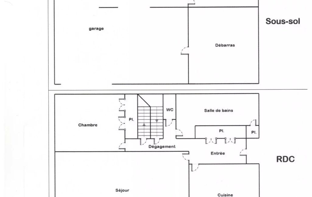
A St Amans des Cots à proximité des commerces et des services je vous propose cette maison meublée habitable de 1992 sur une parcelle d'environ 700 m2.
Dans un lotissement très tranquille. Elle est isolée comme elle était prévue avec un chauffage électrique.
D'une superficie d'environ 75 m2 et d'environ 44 m2 de combles aménageables.
Au niveau habitable vous avez une cuisine, une salle de bain, un grand séjour et une chambre desservit par une entrée avec placard.
En rez de jardin vous avec un sous sol total de plus d'environ 90 m2 avec cave et espace chaufferie. la charpente et la couverture sont en bon état. La maison a les menuiseries en double vitrage.
Il est possible de réaliser un appartement de type T2 en rez de jardin si besoin.
Mandat : 86078767
Diagnostic de Performance Énergétique (DPE)
Plus d'informations
-
Conditions
- Loyer de base : 124 000 €
- Taxe foncière : 650 €
- Honoraires à charge de : vendeur
-
Superficies
- Surface habitable : 75 m²
Localisation
Contactez nous
Pour plus d'informations sur cette annonce, n'hésitez pas à nous contacter