Location
Appartement
à
Saint-Denis
804 € CC /mois
Saint-Denis (93200)
iad France - Nicolas Vysavat (06 51 41 93 21) vous propose : Location nue soumise au dispositif de la loi Pinel (sous conditions de ressources)
Veuillez NE PAS APPELER svp et remplir le FORMULAIRE DE CONTACT en ligne figurant sur cette annonce pour toute candidature, puis VISITE UNIQUEMENT SUR DOSSIER COMPLET.
Disponible à partir du 30 janvier 2026.
De nouvelles photos plus récentes seront mises en ligne à la fin du mois, suite au départ du locataire actuel.
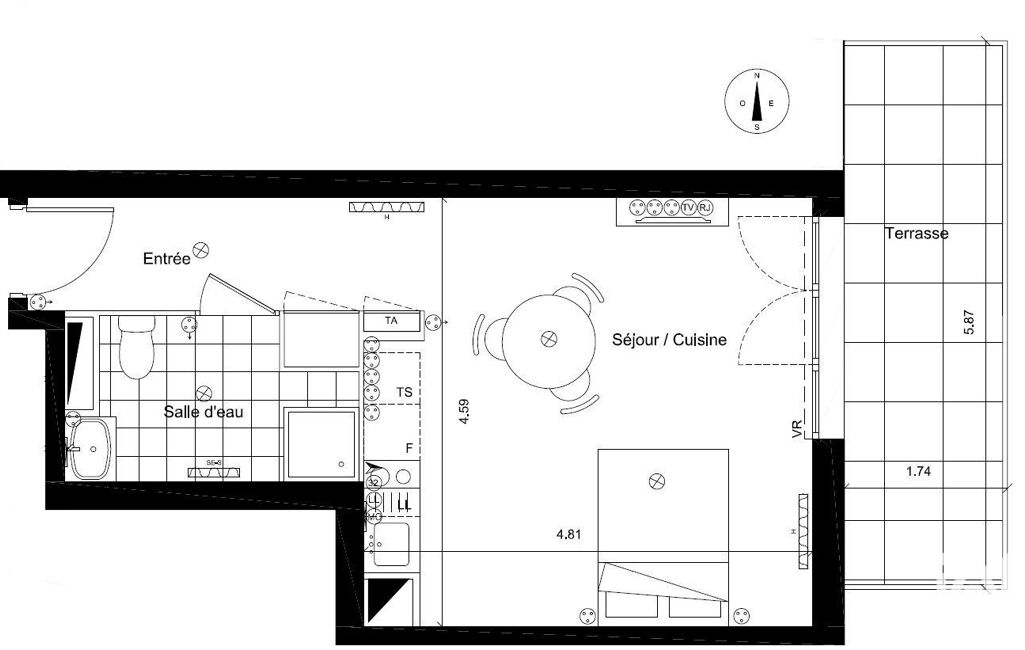
Situé au sein de la résidence récente de 2020, sécurisée et offrant des prestations modernes, ce studio de 31 m² environ se situe au rez-de-chaussée et propose :
- Une entrée desservant la pièce principale.
- Un espace de vie lumineux avec coin cuisine, prolongé d'une belle terrasse de plus de 10 m² environ.
- Une salle d'eau moderne avec WC intégrés.
Confort & Énergie : Logement répondant aux dernières normes énergétiques. Chauffage et production d’eau chaude via gaz collectif (avec compteurs individuels).
La résidence se distingue par ses services, incluant un rooftop, une salle de sport réservée aux résidents et un accès sécurisé au local vélos.
Localisation
Idéalement situé dans le quartier de La Plaine Saint-Denis, dans un secteur dynamique en zone très tendue, à proximité immédiate des commerces, des services et des accès transports (secteur bien desservi par le réseau urbain).
- RER B : Station 'La Plaine Stade de France' à env. 10-12 min à pied (accès direct Paris Gare du Nord en 5 min / Châtelet-Les Halles en 10 min).
- Métro Ligne 12 : Station 'Front Populaire' accessible rapidement en bus ou à pied (env. 15 min).
- Bus : Lignes 153, 173, 239 et 302 à proximité immédiate, permettant de rejoindre les pôles de transport et le centre-ville.
- Accès routiers : Proximité immédiate des autoroutes A1 et A86 (accès rapide vers Paris, Roissy CDG et Saint-Denis Pleyel).
Conditions de location
- Dispositif Pinel : Location soumise aux plafonds de ressources Pinel (Zone A bis). Votre revenu fiscal de référence N-2 doit respecter les barèmes en vigueur.
- Revenus nets mensuels requis : minimum 3 fois le loyer CC.
- Visites uniquement sur dossier de candidature complet.
Conditions financières
- Loyer hors charges : 668,66 €
- Provision sur charges : 136 € (comprenant l'entretien des parties communes, l'eau et le chauffage - régularisation annuelle selon décompte du syndic)
- Loyer charges comprises : 804,66 €
- Dépôt de garantie : 668,66 €
- Honoraires locataire : 469,03 €
En sus des honoraires de location, une prestation d’état des lieux d'entrée sera réalisée et facturée au locataire par Homepilot à hauteur de 3€TTC/m².
Information d'affichage énergétique sur ce bien : classe ENERGIE C indice 182 et classe CLIMAT C indice 20. Les informations sur les risques auxquels ce bien est exposé sont disponibles sur le site Géorisques : www.georisques.gouv.fr. La présente annonce immobilière a été rédigée sous la responsabilité éditoriale de M. Nicolas Vysavat EI (ID 40047), mandataire indépendant en immobilier (sans détention de fonds), agent commercial de la SAS I@D France immatriculé au RSAC de BOBIGNY sous le numéro 854061090, titulaire de la carte de démarchage immobilier pour le compte de la société I@D France SAS. Location non meublée. Charges locatives : 136 euros / mois. Dépôt de garantie : 669 euros. Honoraires TTC à la charge du locataire: 372 euros (soit 12.00 euros / m²).Le présent bien est commercialisé dans le cadre d'une délégation de mandat.
Retrouvez tous nos biens sur notre site internet. www.iadfrance.fr
Mandat : 1922194
Diagnostic de Performance Énergétique (DPE)
Plus d'informations
-
Equipement
- Câble TV
- Digicode
- Placards
- Chauffage : collectif gaz radiateur
- Interphone
-
Descriptif
- Terrasse
- Ascenseur
- Nb. de pièces : 1
-
Loi ALUR
- Copropriété
- Nombre de lots de la copropriété : 1
- Moyenne de la quote part(an) : 12 €
-
Conditions
- Charges : 136 €
- Honoraires : 372 €
-
Etat
- Année de construction : 2020
-
Superficies
- Surface habitable : 31 m²
Localisation
Contactez nous
Pour plus d'informations sur cette annonce, n'hésitez pas à nous contacter