Vente
Terrain
à
Villedômer
50 250 €
Villedômer (37110)
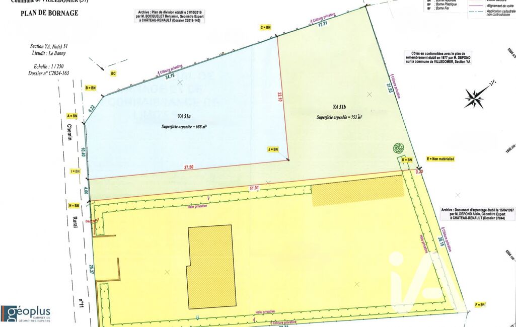
iad France - Séverine Fevrier vous propose: Terrain à bâtir parcelle YA50b de 753 m2 et libre de constructeur.
Il se situe sur la commune de Villedomer dans un lieu dit. Vous serez à 20 min de tours et 7 min de château-Renault.
Le terrain est parfaitement plat et une bonne partie est clôturée. Vous serez libre de construire la maison de vos rêves sans aucune contrainte des bâtiments de France.
Le terrain n'est pas viabilisé mais tous les réseaux sont en bordure de route (électricité, eau et fibre). L'assainissement sera fait obligatoirement par un assainissement individuel.
L'étude de sol G1 a déjà été réalisée.
Honoraires d'agence à la charge du vendeur.
Bien non soumis au DPE. Les informations sur les risques auxquels ce bien est exposé, y compris l'obligation légale de débroussaillement, sont disponibles sur le site Géorisques : http://www.georisques.gouv.fr.
La présente annonce immobilière a été rédigée sous la responsabilité éditoriale de Mme Séverine Fevrier mandataire indépendant en immobilier (sans détention de fonds), agent commercial de la SAS I@D France immatriculé au RSAC de Blois sous le numéro 498188911, titulaire de la carte de démarchage immobilier pour le compte de la société I@D France SAS.
Mandat : 1923669
Diagnostic de Performance Énergétique (DPE)
Plus d'informations
-
Conditions
- Honoraires à charge de : vendeur
-
Superficies
- Superficie terrain : 753 m²
Localisation
Contactez nous
Pour plus d'informations sur cette annonce, n'hésitez pas à nous contacter