Vente
Studio
à
Bordeaux
65 000 €
Bordeaux (33100)
iad France - Rafael Vu Van vous propose: La présente annonce est soumise à la vente Interactive.
Prix de départ : 65 000 €
La vente interactive est un mode de vente immobilière digitale reposant sur un principe d’enchères en ligne. Elle permet aux acquéreurs de déposer facilement, en ligne, leurs offres d'achat à l'intention du vendeur.
Début des offres d'achat en ligne : 2 mars 2026 à 9h
Fin des offres d'achat en ligne : 31 mars 2026 à 19h
Le vendeur peut contresigner en ligne et à tout moment, toute offre d'achat dont le prix
et les conditions lui conviennent.
Il n'est contraint par aucune offre d'achat, quel que soit le montant de celle-ci. OPPORTUNITÉ INVESTISSEUR – Studio Neuf avec Terrasse – Résidence Étudiante BORDOVITA – Bordeaux Centre
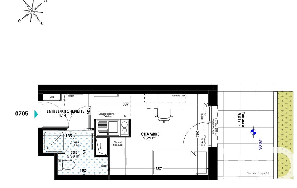
Investissez en toute sérénité dans ce studio meublé de 16 m², livré en 2022, situé au 7ᵉ étage de la résidence étudiante récente BORDOVITA - STUDEA, en plein centre de Bordeaux et proche de la gare Bordeaux Saint-Jean.
Aucun travaux à prévoir, le bien est comme neuf et bénéficie d’une terrasse privative de 6 m², un vrai atout pour les locataires étudiants à la recherche d’un confort de vie optimal.
Les atouts de l’investissement :
- Loyer garanti actuellement à 806,43 € par trimestre via un bail géré par Nexity Studéa jusqu'en 2032, acteur reconnu de la gestion locative étudiante.
- Occupation assurée grâce à une rotation des locataires étudiants en fonction des périodes scolaires : aucun risque de vacance locative (votre loyer est garanti que le studio soit occupé ou non)
- Forte demande locative à Bordeaux, secteur attractif pour les étudiants.
Le logement en détail :
- Pièce de vie lumineuse, bien agencée avec coin nuit, kitchenette et salle d'eau moderne.
- Exposition ouest offrant une belle luminosité naturelle.
- Terrasse de 7 m² avec vue dégagée : rare dans ce type de résidence.
- Fibre optique, chauffage collectif, résidence connectée.
Services haut de gamme de la résidence :
- Espace de coworking
- Espace détente/médiathèque
- Grande cuisine partagée en complément de la cuisine du logement
- Laverie sur place
- Connexion internet incluse dans les charges
- Local vélos, trottinettes
- Sécurité renforcée : digicode, interphone, personne à l'accueil sur place
- Accessibilité PMR et ascenseur
- Une grande terrasse de plus de 100m² également au 7ème étage accessible
Localisation idéale :
Situé au centre de Bordeaux, à proximité immédiate des transports (bus ou tram), commerces (Carrefour city, boulangerie, salle de sport etc..), universités et lieux de vie. Un emplacement stratégique pour garantir la rentabilité de votre investissement.
Un placement sécurisé, clé en main, dans une résidence récente et dynamique.
Contactez moi sans tarder pour plus d’informations ou organiser une visite.
Chers confrères et consOEurs, toutes mes annonces sont ouvertes à l’inter-cabinet. Je reste à votre disposition, n’hésitez pas à me contacter si vous avez des acquéreurs intéressés.
La presente annonce immobiliere vise 1 lot situé dans une copropriété de 124 lots au total et ne faisant l'objet d'aucune procédure en cours citée à l'article L. 721-1 du code de la construction et de l'habitation. Montant moyen mensuel de charges déclaré par le vendeur : 76.67€ par mois (soit 920.04 € annuel). Honoraires d'agence à la charge du vendeur.
Information d'affichage énergétique sur ce bien : classe ENERGIE C indice 140 et classe CLIMAT C indice 25. Les informations sur les risques auxquels ce bien est exposé, y compris l'obligation légale de débroussaillement, sont disponibles sur le site Géorisques : http://www.georisques.gouv.fr.
La présente annonce immobilière a été rédigée sous la responsabilité éditoriale de M Rafael Vu Van mandataire indépendant en immobilier (sans détention de fonds), agent commercial de la SAS I@D France immatriculé au RSAC de Créteil sous le numéro 832335012, titulaire de la carte de démarchage immobilier pour le compte de la société I@D France SAS.
Mandat : 1908700
Diagnostic de Performance Énergétique (DPE)
Plus d'informations
-
Descriptif
- Étage du bien : 7eme
- Gardien
- Terrasse
- Ascenseur
- Nbre. d'étages : 7
- Nb. de pièces : 1
-
Equipement
- Alarme
- Câble TV
- Digicode
- Placards
- Chauffage : collectif electrique radiateur
-
Loi ALUR
- Copropriété
- Nombre de lots de la copropriété : 124
- Moyenne de la quote part(an) : 920.04 €
-
Etat
- Année de construction : 2022
-
Conditions
- Honoraires à charge de : vendeur
-
Superficies
- Surface habitable : 16 m²
Localisation
Contactez nous
Pour plus d'informations sur cette annonce, n'hésitez pas à nous contacter