Vente
Maison
à
Andelot-Blancheville
50 000 €
Andelot-Blancheville (52700)
iad France - Clement Desbarres vous propose: Opportunité à Saisir : Maison en partie rénovée de 110m² à Andelot-Blancheville
Vous recherchez un projet immobilier à fort potentiel dans un cadre paisible et proche de toutes les commodités ? Cette maison située à Andelot-Blancheville est l'opportunité parfaite pour un investissement en toute sérénité.
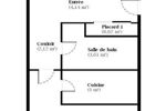
Elle se compose au rez-de-chaussée d'un joli séjour avec cheminée, d'une cuisine aménagée, une chambre, salle d'eau et un WC séparé.
A l'étage, vous trouverez trois chambres à rénover et une grande salle d'eau.
Une grande cave vient compléter ce bien.
Avec ses 110m² de superficie, cette maison offre de vastes possibilités de réaménagement selon vos préférences et besoins. Actuellement, elle se compose de 5 pièces, offrant ainsi une toile blanche pour laisser libre cours à votre imagination et concevoir l'espace de vie idéal ou même de créer deux appartements.
Quelques travaux de rénovation seront à prévoir pour remettre cette maison à votre goût, et en faire un lieu de vie chaleureux et personnalisé.
Située à proximité des commodités et des services essentiels, cette maison offre un cadre de vie pratique et agréable, idéal pour un premier achat ou investissement locatif.
N'hésitez pas à me contacter pour plus d'informations.
Honoraires d'agence à la charge du vendeur.
Information d'affichage énergétique sur ce bien : classe ENERGIE E indice 222 et classe CLIMAT E indice 69. Les informations sur les risques auxquels ce bien est exposé, y compris l'obligation légale de débroussaillement, sont disponibles sur le site Géorisques : http://www.georisques.gouv.fr.
La présente annonce immobilière a été rédigée sous la responsabilité éditoriale de M Clement Desbarres mandataire indépendant en immobilier (sans détention de fonds), agent commercial de la SAS I@D France immatriculé au RSAC de CHAUMONT sous le numéro 798877213, titulaire de la carte de démarchage immobilier pour le compte de la société I@D France SAS.
Mandat : 1878521
Diagnostic de Performance Énergétique (DPE)
Plus d'informations
-
Descriptif
- Cave
- Nbre. de chambres : 4
- Nb. de pièces : 5
-
Equipement
- Chauffage : fuel radiateur
-
Conditions
- Honoraires à charge de : vendeur
-
Superficies
- Surface habitable : 110 m²
Localisation
Contactez nous
Pour plus d'informations sur cette annonce, n'hésitez pas à nous contacter