Vente
Terrain
à
Bresles
49 000 €
Bresles (60510)
iad France - Rodolf Lasnier vous propose: Terrain constructible 378 m² – terrain clos et plat – projet avec permis validé en option – Bresles
Situé dans un secteur pavillonnaire calme et recherché, ce terrain constructible de 378 m², plat et entièrement clos, est proposé avec un projet de construction disposant d’un permis de construire accordé. Ce projet (plans, permis, implantation) est entièrement facultatif.
L’acquéreur peut également déposer un nouveau permis, dans le respect des règles d’urbanisme en vigueur.
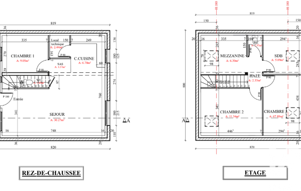
Le projet optionnel prévoit une maison individuelle R+1 sur une emprise au sol de plus de 60m2, toiture deux pentes, et organisation intérieure familiale : pièce de vie et chambre au rez-de-chaussée, 2 chambres à l’étage, salle de bains, WC, possibilité de mezzanine. 2 places de stationnement dont une avec carport.
Terrain avec accès existant, réseaux à proximité.
Terrain vendu libre de tout engagement de construction.
Dossier complet et chiffré sur demande.
Contactez moi pour organiser une visite.
-
Rodolf Lasnier iad France, votre conseiller Immobilier Sud Oise & Porte de Paris
Avis de valeur OFFERT en Ile de France et dans l'Oise.
Me contacter pour plus d'informations.
Je suis entièrement ouvert au partage d'affaire.
Honoraires d'agence à la charge du vendeur.
Bien non soumis au DPE. Les informations sur les risques auxquels ce bien est exposé, y compris l'obligation légale de débroussaillement, sont disponibles sur le site Géorisques : http://www.georisques.gouv.fr.
La présente annonce immobilière a été rédigée sous la responsabilité éditoriale de M Rodolf Lasnier mandataire indépendant en immobilier (sans détention de fonds), agent commercial de la SAS I@D France immatriculé au RSAC de COMPIEGNE sous le numéro 913393831, titulaire de la carte de démarchage immobilier pour le compte de la société I@D France SAS.
Mandat : 1938450
Diagnostic de Performance Énergétique (DPE)
Plus d'informations
-
Conditions
- Honoraires à charge de : vendeur
-
Superficies
- Superficie terrain : 378 m²
Localisation
Contactez nous
Pour plus d'informations sur cette annonce, n'hésitez pas à nous contacter