Annonce détaillée

Vente
Maison de village à Précy-Saint-Martin
39 000 

Détails du bien

Pièce(s)
5 pièces
Salle(s) de bain
3
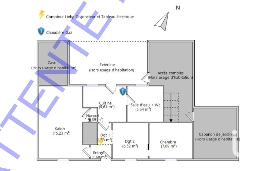
Surface
69 m²
Surface terrain
482 m²
Orientation
-

Plus d'informations

  • Descriptif
    • Nbre. d'étages : 2
    • Nbre. de chambres : 3
    • Nb. de pièces : 5
  • Superficies
    • Superficie terrain : 482 m²
    • Surface habitable : 69 m²
  • Etat
    • Année de construction : 1949
  • Conditions
    • Honoraires à charge de : vendeur

Localisation

Contactez nous

Pour plus d'informations sur cette annonce, n'hésitez pas à nous contacter

Delphine Broekaert

Annonce 3080 / 66008