Vente
Maison
à
Lupersat
42 000 €
Lupersat (23190)
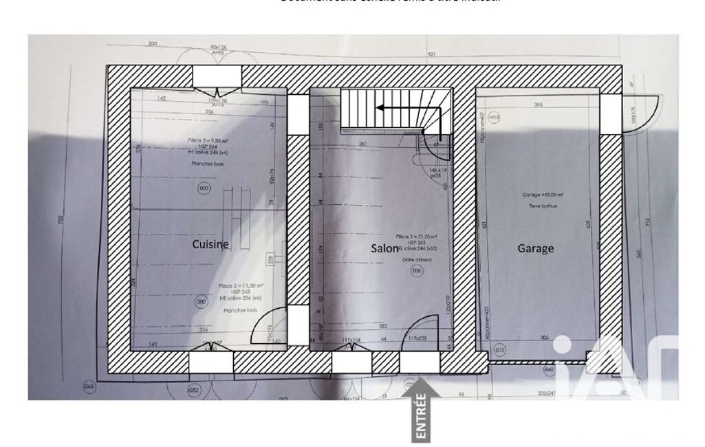
iad France - Bernard Lubese vous propose: MAISON EN PIERRE AVEC JARDIN & GARAGE – 90 m²
Le charme de l'ancien à rénover selon vos envies !
Envie d'un projet qui a du cachet ? Venez découvrir cette maison en pierre pleine de charme , située dans un village paisible et offrant un superbe potentiel pour ceux qui souhaitent créer un intérieur à leur image.
On aime :
-Toiture ardoise isolée et tout-à-l'égout : une base saine et rassurante.
-Garage intégré, jardin attenant et puits : des extérieurs rares à ce prix !
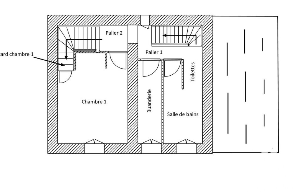
-Beaux volumes : salon lumineux, cuisine avec cheminée, chambre + salle d'eau à l'étage, deux chambres mansardées au deuxième.
Ses points forts :
-Le charme authentique des murs en pierre.
-Un intérieur à repenser facilement selon vos envies (suite parentale, bureau, salle de jeux…).
-Un jardin agréable, idéal pour vos repas d'été ou pour créer un petit potager.
C'est le coup de cOEur des amateurs de vieilles pierres !
Une fois rénovée, elle deviendra sans aucun doute une maison chaleureuse et unique , parfaite pour vivre ou investir.
Contactez Bernard Lubese dès maintenant pour organiser votre visite et imaginez dès aujourd'hui votre futur chez vous !
Honoraires d'agence à la charge du vendeur.
Bien non soumis au DPE. Les informations sur les risques auxquels ce bien est exposé, y compris l'obligation légale de débroussaillement, sont disponibles sur le site Géorisques : http://www.georisques.gouv.fr.
La présente annonce immobilière a été rédigée sous la responsabilité éditoriale de M Bernard Lubese mandataire indépendant en immobilier (sans détention de fonds), agent commercial de la SAS I@D France immatriculé au RSAC de GUERET sous le numéro 981636608, titulaire de la carte de démarchage immobilier pour le compte de la société I@D France SAS.
Mandat : 1896141
Diagnostic de Performance Énergétique (DPE)
Plus d'informations
-
Descriptif
- Nbre. d'étages : 3
- Nbre. de chambres : 3
- Nb. de pièces : 5
-
Equipement
- Cheminée
- Chauffage : electrique
-
Superficies
- Superficie terrain : 225 m²
- Surface habitable : 90 m²
-
Etat
- Année de construction : 1947
-
Conditions
- Honoraires à charge de : vendeur
Localisation
Contactez nous
Pour plus d'informations sur cette annonce, n'hésitez pas à nous contacter