Vente
Terrain
à
Ormes
38 000 €
Ormes (27190)
iad France - Anne-Charlotte Danveau vous propose: Terrain à bâtir à ORMES (27190) – Entre Le Neubourg et Évreux
Vous cherchez un terrain pour construire la maison de vos rêves dans un cadre calme et verdoyant ?
Ne cherchez plus, ce terrain plat de 1000 m², situé sur la commune d’Ormes (27190), est fait pour vous !
Ses atouts :
Hors lotissement : Un cadre préservé, sans les contraintes d’un lotissement.
Libre de constructeur : Concevez votre projet à votre image, en toute liberté.
Non viabilisé, mais réseaux en bordure de route : EDF, eau et fibre optique à proximité pour un confort moderne.
Certificat d’urbanisme positif : Terrain constructible.
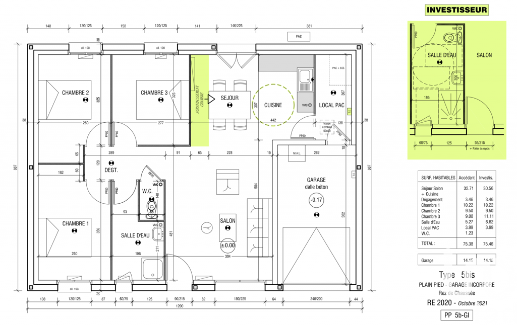
À découvrir en projection : une simulation de maison créée par le constructeur MAISONS LE MASSON. Cette proposition met en avant un projet unique et sur mesure, idéal pour répondre à vos besoins et attentes. Profitez de cette visualisation pour imaginer votre futur chez-vous !
Un emplacement stratégique :
Idéalement situé sur l’axe Le Neubourg – Évreux, à seulement 15 minutes de ces deux villes.
Village agréable avec dépôt de pain et école primaire, en regroupement scolaire avec Ferrières-Haut-Clocher et Portes.
Mini-bus scolaire pour l’école maternelle.
À seulement 3 km des services médicaux (médecin, kinés, cabinet d'infirmières, sage-femme, psychologue...), commerces (supérette, coiffeur, esthétique) et école maternelle, bibliothèque et bientôt une pizzéria.
Tout le charme de la campagne, avec la ville à portée de main !
Profitez d’un cadre paisible et verdoyant tout en restant proche des commodités et des grandes villes. Une opportunité idéale pour allier qualité de vie, sérénité et praticité au quotidien !
Contactez-moi dès aujourd’hui pour plus d’informations ou organiser une visite !
Honoraires d'agence à la charge du vendeur.
Bien non soumis au DPE. Les informations sur les risques auxquels ce bien est exposé, y compris l'obligation légale de débroussaillement, sont disponibles sur le site Géorisques : http://www.georisques.gouv.fr.
La présente annonce immobilière a été rédigée sous la responsabilité éditoriale de Mme Anne-Charlotte Danveau mandataire indépendant en immobilier (sans détention de fonds), agent commercial de la SAS I@D France immatriculé au RSAC de EVREUX sous le numéro 502447832, titulaire de la carte de démarchage immobilier pour le compte de la société I@D France SAS.
Mandat : 1796415
Diagnostic de Performance Énergétique (DPE)
Plus d'informations
-
Conditions
- Honoraires à charge de : vendeur
-
Superficies
- Superficie terrain : 1000 m²
Localisation
Contactez nous
Pour plus d'informations sur cette annonce, n'hésitez pas à nous contacter