Vente
Maison de campagne
à
Flastroff
35 000 €
Flastroff (57320)
iad France - Emilie PERRIN vous propose: Maison à réhabiliter entièrement avec dépendances – Secteur calme à Zeurange
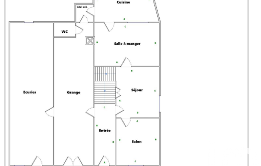
Située dans un environnement paisible, cette maison à rénover développe environ 122 m² habitables, avec un jardin attenant et un second jardin non attenant, idéal pour profiter d’un bel espace extérieur.
Le bien dispose déjà de menuiseries en double vitrage, offrant une base intéressante pour démarrer le projet de rénovation.
Une rénovation globale est à prévoir afin de redonner tout son potentiel à cette maison :
charpente et toiture,
création d’un système de chauffage,
installation d’une micro-station d’assainissement,
remise aux normes de l’installation électrique,
rénovation énergétique,
création d’une salle de bain,
remplacement des planchers.
Selon l’aménagement souhaité, le budget travaux pour la partie habitable peut être estimé à environ 150 000 €, permettant de transformer ce bien en une maison confortable et personnalisée.
La propriété comprend également un garage d’environ 40 m² ainsi qu’une grange sur deux niveaux d’environ 65 m² par plateau, offrant de nombreuses possibilités : atelier, stockage, extension de l’habitation ou création d’un logement indépendant.
Un bien idéal pour les amateurs de rénovation souhaitant créer un lieu de vie à leur image dans un cadre calme et verdoyant.
Honoraires d'agence à la charge du vendeur.
Bien non soumis au DPE. Les informations sur les risques auxquels ce bien est exposé, y compris l'obligation légale de débroussaillement, sont disponibles sur le site Géorisques : http://www.georisques.gouv.fr.
La présente annonce immobilière a été rédigée sous la responsabilité éditoriale de Mme Emilie PERRIN mandataire indépendant en immobilier (sans détention de fonds), agent commercial de la SAS I@D France immatriculé au RSAC de thionville sous le numéro 883374159, titulaire de la carte de démarchage immobilier pour le compte de la société I@D France SAS.
Mandat : 1813602
Diagnostic de Performance Énergétique (DPE)
Plus d'informations
-
Descriptif
- Nbre. d'étages : 2
- Nb. de pièces : 6
-
Superficies
- Superficie terrain : 1039 m²
- Surface habitable : 121 m²
-
Etat
- Année de construction : 1900
-
Conditions
- Honoraires à charge de : vendeur
Localisation
Contactez nous
Pour plus d'informations sur cette annonce, n'hésitez pas à nous contacter