Location
Appartement
à
Orléans
450 € CC /mois
Orléans (45000)
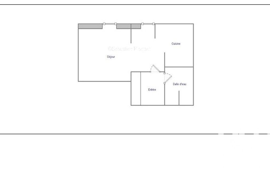
iad France - Sébastien Floquet vous propose: Studio meublé de 23m² refait à neuf, situé au 4ème étage d’une résidence sécurisée de 5 étages avec ascenseur, rue Henri Roy à Orléans.
Cet appartement lumineux se compose d’une entrée avec placards, d’une pièce à vivre, d’une cuisine séparée, d’une salle d’eau avec toilettes.
Proche des moyens de transports et des commerces.
Information d'affichage énergétique sur ce bien : classe ENERGIE E indice 335 et classe CLIMAT A indice 1. Les informations sur les risques auxquels ce bien est exposé, y compris l'obligation légale de débroussaillement, sont disponibles sur le site Géorisques : http://www.georisques.gouv.fr.
La présente annonce immobilière a été rédigée sous la responsabilité éditoriale de M Sébastien Floquet mandataire indépendant en immobilier (sans détention de fonds), agent commercial de la SAS I@D France immatriculé au RSAC de Orléans sous le numéro 830596953, titulaire de la carte de démarchage immobilier pour le compte de la société I@D France SAS. Location meublée. Montant du loyer mensuel charges comprises : 450.00 euros / mois. Charges forfaitaires : 50.00 euros / mois. Zone soumise à encadrement : oui. Montant du loyer de base : 400.00 euros / mois. Montant du loyer de référence majoré : 400.00 euros / mois. Montant du complément de loyer : 50.00 euros / mois. Dépôt de garantie : 800 euros. Honoraires TTC à la charge du locataire: 230 euros (soit 10€/m²).
Mandat : 1982710
Diagnostic de Performance Énergétique (DPE)
Plus d'informations
-
Descriptif
- Étage du bien : 4eme
- Meublé
- Ascenseur
- Nbre. d'étages : 5
- Nb. de pièces : 1
-
Equipement
- Digicode
- Chauffage : collectif gaz
- Interphone
-
Conditions
- Charges : 50 €
- Honoraires : 230 €
-
Superficies
- Surface habitable : 23 m²
Localisation
Contactez nous
Pour plus d'informations sur cette annonce, n'hésitez pas à nous contacter