Location
Maison
à
Noisy-le-Grand
6 000 € CC /mois
Noisy-le-Grand (93160)
iad France - Erika De Gouveia vous propose: LOCATION MEUBLEE, BAIL d'1 AN RENOUVELABLE tacite reconduction!
Sublime Demeure de Caractère 9p de 230m2 en carrez (429m2 utiles) sur un terrain de 3052m2 à Noisy-le-Grand, secteur Villeflix limite Coteaux.
Bienvenue dans cette magnifique demeure d'exception, construite en 2004, alliant charme, élégance et confort. Nichée sur un vaste terrain de plus de 3052m² avec des arbres centenaires, cette demeure de 9 pièces offre un cadre de vie unique et prestigieux avec une PISCINE INTERIEURE CHAUFFEE et nage à contre-courant.
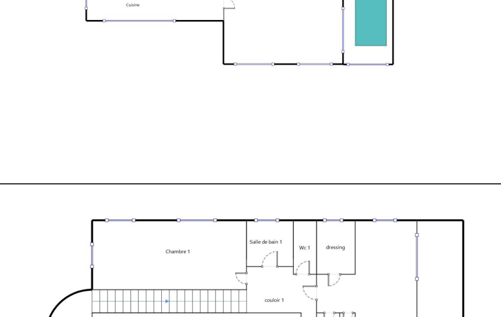
Au rez-de-chaussée, vous découvrirez un hall d'entrée majestueux avec placards, une chambre, une salle d'eau, WC suspendu, et une grande cuisine aménagée et équipée de 23m2 donnant sur la terrasse et le jardin.
Vous apprécierez également le TRIPLE-SEJOUR de 80m² avec CHEMINEE, baigné de lumière par ses larges baies vitrées et donnant sur une pièce de 73m2 où vous pourrez vous baigner même pendant l'hiver grâce à sa piscine chauffée (7,74mX4,37m).
À l'étage, vous serez charmés par la SUITE PARENTALE de 40m2 avec salle d'eau privative et dressing donnant sur une TERRASSE ROOFTOP de 105m2, trois autres chambres parquetées, une salle d'eau, un WC indépendant et une buanderie. Possibilité de transformer aisément une chambre en une autre suite parentale avec salle d'eau privative. Chaque espace a été pensé pour offrir un confort optimal et un cadre de vie raffiné.
Le SOUS-SOL semi-enterré de 160m2 dispose d'une chambre supplémentaire et d'une salle d'eau avec WC, idéale pour recevoir des invités en toute intimité. Ainsi qu'une SALLE DE JEUX/CINEMA de 83m2, chaufferie, local technique, et deux grandes pièces de rangement.
À l'extérieur, un superbe jardin paysager avec arbres fruitiers vous invite à la détente, pour des moments de relaxation inoubliables. Un DOUBLE GARAGE avec fosse et plusieurs places de parking complètent les prestations de ce bien d'exception.
Idéalement située, cette demeure se trouve à 20min à pied de la Gare Mont d'Est (5min en voiture) et à 8min à pied du Centre-ville, offrant ainsi un accès facile aux transports en commun et aux commodités.
Cette propriété unique alliant confort, modernité et authenticité saura combler les amateurs de belles demeures. Une visite s'impose pour apprécier pleinement le charme et le raffinement de cette propriété.
Contactez-moi dès maintenant pour plus d'informations ou pour planifier une visite.
Votre conseillère disponible 7j/7j.
Information d'affichage énergétique sur ce bien : classe ENERGIE B indice 104 et classe CLIMAT B indice 8. Les informations sur les risques auxquels ce bien est exposé, y compris l'obligation légale de débroussaillement, sont disponibles sur le site Géorisques : http://www.georisques.gouv.fr.
La présente annonce immobilière a été rédigée sous la responsabilité éditoriale de Mme Erika De Gouveia mandataire indépendant en immobilier (sans détention de fonds), agent commercial de la SAS I@D France immatriculé au RSAC de Créteil sous le numéro 528293715, titulaire de la carte de démarchage immobilier pour le compte de la société I@D France SAS. Location meublée. Montant du loyer mensuel charges comprises : 6000.00 euros / mois. Charges forfaitaires : 40.00 euros / mois. Zone soumise à encadrement : non. Dépôt de garantie : 6000 euros. Honoraires TTC à la charge du locataire: 1500 euros (soit 6€/m²).
Mandat : 1867951
Diagnostic de Performance Énergétique (DPE)
Plus d'informations
-
Descriptif
- Meublé
- Terrasse
- Nbre. d'étages : 3
- Nbre. de chambres : 5
- Nb. de pièces : 9
-
Equipement
- Alarme
- Câble TV
- Chauffage : gaz
-
Conditions
- Charges : 40 €
- Honoraires : 1 500 €
-
Superficies
- Superficie terrain : 3052 m²
- Surface habitable : 230 m²
-
Extérieur
- Piscine
-
Etat
- Année de construction : 2004
Localisation
Contactez nous
Pour plus d'informations sur cette annonce, n'hésitez pas à nous contacter