Location
Local commercial
à
Aire-sur-l'Adour
5 852 € CC /mois
Aire-sur-l'Adour (40800)
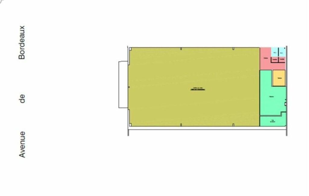
iad France - Christel Lajous (06 62 34 96 14) vous propose : À LOUER – LOCAL COMMERCIAL 610 m² environ – ZONE COMMERCIALE AIRE-SUR-L’ADOUR
Idéalement situé dans une zone commerciale dynamique, ce local commercial de 610 m² environ (dont 495 m² environ de surface de vente) bénéficie d’une excellente visibilité sur un rond-point très fréquenté. Possibilité de division selon vos besoins.
. Surface totale : 610 m² environ
. Surface de vente : 495 m² environ
. Loyer annuel HT : 65.779€ (soit 107,85 €/m²/an)
. Charges annuelles HT : 4.458€ (soit 7,31 €/m²/an)
. Taxe foncière annuelle : 6.240€ (soit 10,25 €/m²)
. Frais de rédaction du bail : 600 €
. Assurance : à la charge du preneur
. Type de bail : Bail commercial 6/10 ans
Localisation premium sur axe passant – opportunité rare pour développer votre activité dans un secteur à fort potentiel.
Contactez Christel LAJOUS pour organiser une visite ou obtenir plus d'informations.
Information d'affichage énergétique sur le bien associé à cette annonce : DPE NS indice 0 et GES NS indice 0. La présente annonce immobilière a été rédigée sous la responsabilité éditoriale de Mlle Christel Lajous (ID 81311), Agent Commercial mandataire en immobilier immatriculé au Registre Spécial des Agents Commerciaux (RSAC) du Tribunal de Commerce de MONT-DE-MARSAN sous le numéro 984780775
Retrouvez tous nos biens sur notre site internet. www.iadfrance.fr
Mandat : 1764616
Diagnostic de Performance Énergétique (DPE)
Plus d'informations
-
Conditions
- Charges : 371 €
- Honoraires : 19 734 €
-
Superficies
- Surface habitable : 610 m²
Localisation
Contactez nous
Pour plus d'informations sur cette annonce, n'hésitez pas à nous contacter