Vente
Appartement
à
Carcassonne
89 000 €
Carcassonne (11000)
iad France - Bastien CAROLLO vous propose: Appartement T2 rénové et meublé – Résidence sécurisée avec piscine
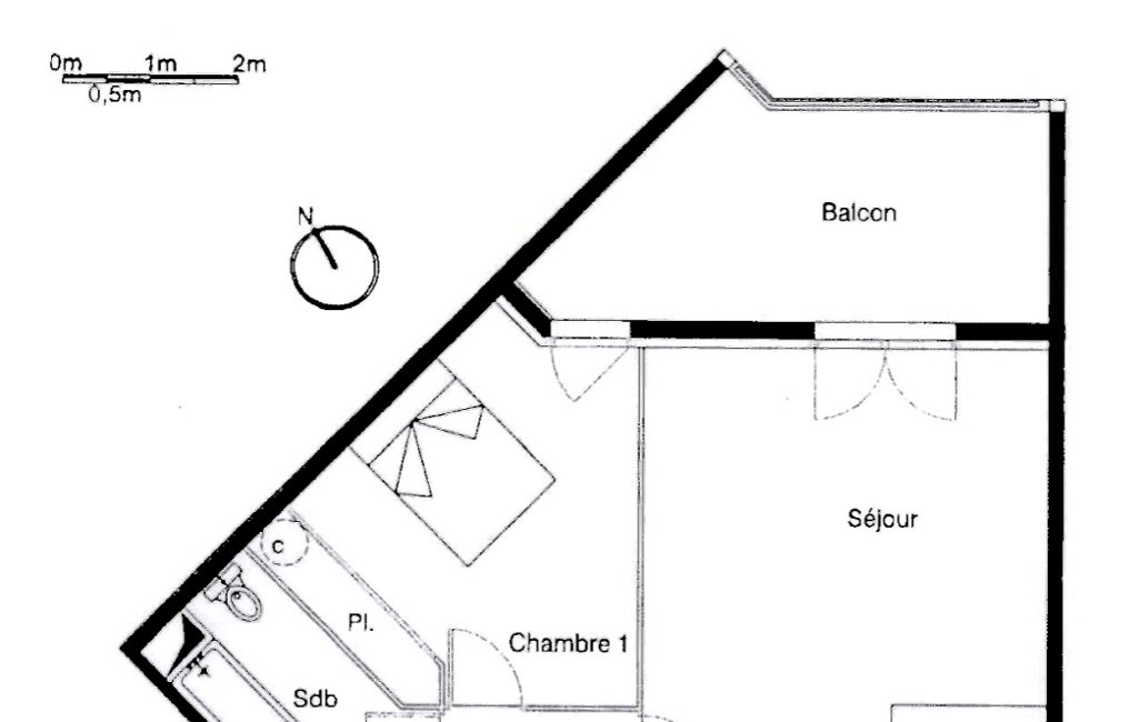
Découvrez en exclusivité cet appartement de type T2 d’environ 45 m², entièrement rénové et vendu meublé, situé au cOEur d’une résidence prisée, sécurisée et parfaitement entretenue. Actuellement loué en meublé pour un loyer mensuel de 600 €, ce bien représente une opportunité idéale pour un investissement locatif immédiat et sans travaux.
L’appartement offre un espace de vie lumineux, composé d’un salon avec cuisine ouverte entièrement équipée, pensé pour allier confort et convivialité. Cet espace s’ouvre directement sur une agréable terrasse extérieure, véritable prolongement du logement, idéale pour profiter des beaux jours. La chambre, spacieuse et soigneusement aménagée, invite au repos dans une atmosphère douce et apaisante. La salle de bain, fonctionnelle, dispose d’une baignoire et de WC.
Au sein de la résidence, vous bénéficierez d’un environnement calme et sécurisé, agrémenté d’une piscine, ainsi que d’une place de stationnement privative numérotée, garantissant un confort quotidien appréciable.
Un bien clé en main, alliant emplacement recherché, prestations de qualité et rentabilité locative, à découvrir sans tarder.
📞 Contactez-moi dès maintenant pour organiser une visite et laissez-vous séduire par ce bel appartement.
La presente annonce immobiliere vise 2 lots situés dans une copropriété de 140 lots au total et ne faisant l'objet d'aucune procédure en cours citée à l'article L. 721-1 du code de la construction et de l'habitation. Montant moyen mensuel de charges déclaré par le vendeur : 31.67€ par mois (soit 380 € annuel). Honoraires d'agence à la charge du vendeur.
Information d'affichage énergétique sur ce bien : classe ENERGIE C indice 160 et classe CLIMAT B indice 6. Les informations sur les risques auxquels ce bien est exposé, y compris l'obligation légale de débroussaillement, sont disponibles sur le site Géorisques : http://www.georisques.gouv.fr.
La présente annonce immobilière a été rédigée sous la responsabilité éditoriale de M Bastien CAROLLO mandataire indépendant en immobilier (sans détention de fonds), agent commercial de la SAS I@D France immatriculé au RSAC de CARCASSONNE sous le numéro 514044874, titulaire de la carte de démarchage immobilier pour le compte de la société I@D France SAS.
Mandat : 1954274
Diagnostic de Performance Énergétique (DPE)
Plus d'informations
-
Loi ALUR
- Copropriété
- Nombre de lots de la copropriété : 140
- Moyenne de la quote part(an) : 380 €
-
Descriptif
- Nbre. d'étages : 2
- Nb. de pièces : 2
-
Equipement
- Chauffage : individuel electrique
-
Etat
- Année de construction : 2004
-
Conditions
- Honoraires à charge de : vendeur
-
Superficies
- Surface habitable : 45 m²
Localisation
Contactez nous
Pour plus d'informations sur cette annonce, n'hésitez pas à nous contacter