Vente
Appartement
à
Grenoble
99 000 €
Grenoble (38100)
iad France - Virginie Pelen vous propose: GRENOBLE - 47m² – Rue H. Moissan
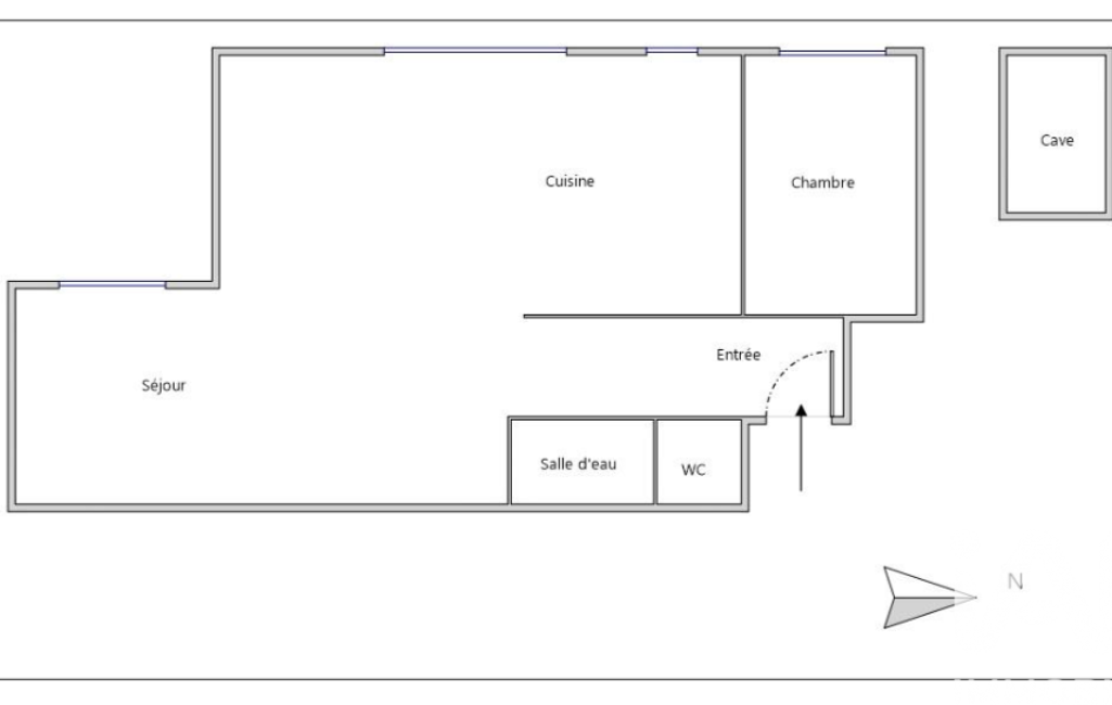
Découvrez cet appartement de 47,48 m² situé au 2ème étage d'une copropriété calme des années 60. Son atout majeur ? Une pièce de vie baignée de lumière de plus de 30 m² grâce à ses larges ouvertures. L'appartement, tel qu'il est configuré, offre de belles possibilités d'aménagement moyennant un coût relatif.
Le bien se compose de :
Une pièce de vie 30m2
Un coin cuisine partiellement équipé.
Une chambre
Une salle d’eau et un WC indépendant.
Double vitrage, chauffage individuel gaz et accès sécurisé (Vigik, fibre optique,). Une cave en sous-sol complète ce bien.
A noter les faibles charges de copropriété : 52€/mois
Idéal investisseur ou 1er achat
Pour toute information complémentaire, merci de me contacter.
La presente annonce immobiliere vise 2 lots situés dans une copropriété de 40 lots au total et ne faisant l'objet d'aucune procédure en cours citée à l'article L. 721-1 du code de la construction et de l'habitation. Montant moyen mensuel de charges déclaré par le vendeur : 52.33€ par mois (soit 628 € annuel). Honoraires d'agence à la charge du vendeur.
Information d'affichage énergétique sur ce bien : classe ENERGIE D indice 217 et classe CLIMAT D indice 46. Les informations sur les risques auxquels ce bien est exposé, y compris l'obligation légale de débroussaillement, sont disponibles sur le site Géorisques : http://www.georisques.gouv.fr.
La présente annonce immobilière a été rédigée sous la responsabilité éditoriale de Mme Virginie Pelen mandataire indépendant en immobilier (sans détention de fonds), agent commercial de la SAS I@D France immatriculé au RSAC de GRENOBLE sous le numéro 522543545, titulaire de la carte de démarchage immobilier pour le compte de la société I@D France SAS.
Mandat : 1952053
Diagnostic de Performance Énergétique (DPE)
Plus d'informations
-
Descriptif
- Cave
- Étage du bien : 2eme
- Nbre. d'étages : 4
- Nbre. de chambres : 1
- Nb. de pièces : 3
-
Loi ALUR
- Copropriété
- Nombre de lots de la copropriété : 40
- Moyenne de la quote part(an) : 628 €
-
Equipement
- Chauffage : individuel gaz radiateur
- Interphone
-
Etat
- Année de construction : 1960
-
Conditions
- Honoraires à charge de : vendeur
-
Superficies
- Surface habitable : 47 m²
Localisation
Contactez nous
Pour plus d'informations sur cette annonce, n'hésitez pas à nous contacter