Vente
Terrain
à
Valmont
87 450 €
Valmont (76540)
iad France - Jérôme GUYOT (06 60 28 10 03) vous propose : TERRAIN A BÂTIR VIABILISE a vendre dans la commune de VALMONT.
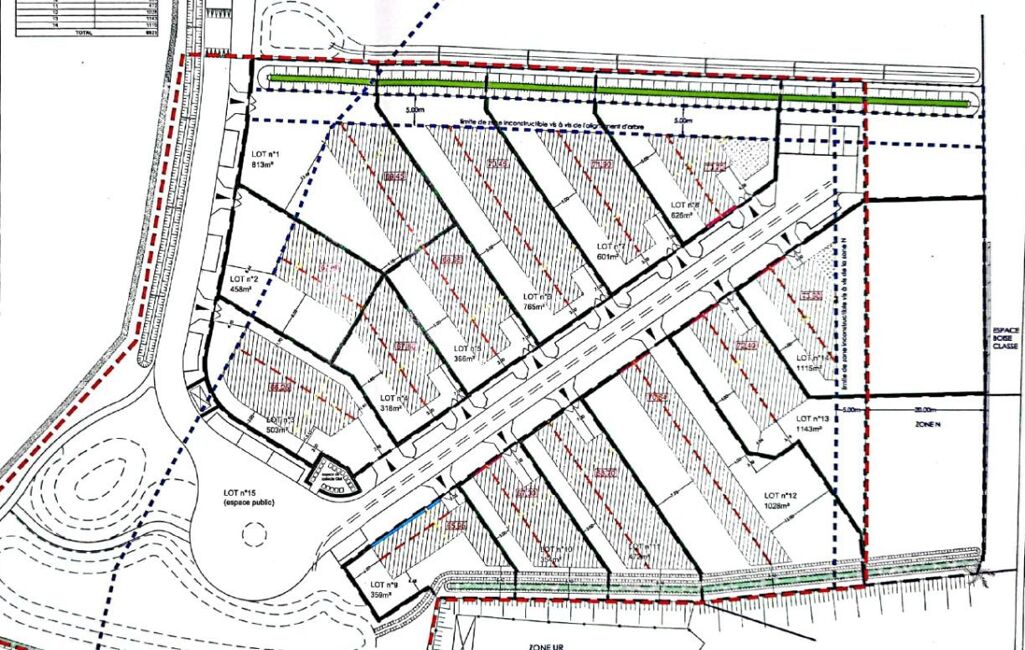
Dans le cadre de l'aménagement d'un lotissement de 14 lots de terrains à bâtir , ce lot de 626m² environ est disponible à acheter entièrement viabilisé.
Pour chaque lot :
- Viabilisation des parcelles pour l'ensemble des réseaux ( électricité, télécommunications, AEP, eaux usées et pluviales) avec intégration des coffrets électriques dans la clôture et la haie.
- Fourniture d'une cuve béton de récupération des eaux de pluies
- Fourniture et pose d'une clôture et haie entre les limites privées et public de chaque parcelle.
- Fourniture et pose d'un portail.
-Entrée charretière en béton.
Me contacter par téléphone pour vous positionner.
Pas sérieux s'abstenir.
Honoraires d’agence à la charge du vendeur. Bien non soumis au DPE. Les informations sur les risques auxquels ce bien est exposé sont disponibles sur le site Géorisques : www.georisques.gouv.fr. La présente annonce immobilière a été rédigée sous la responsabilité éditoriale de M. Jérôme GUYOT EI (ID 22706), mandataire indépendant en immobilier (sans détention de fonds), agent commercial de la SAS I@D France immatriculé au RSAC de LE HAVRE sous le numéro 828520049, titulaire de la carte de démarchage immobilier pour le compte de la société I@D France SAS.
Retrouvez tous nos biens sur notre site internet. www.iadfrance.fr
Mandat : 1166594-8
Diagnostic de Performance Énergétique (DPE)
Plus d'informations
-
Conditions
- Honoraires à charge de : vendeur
-
Superficies
- Superficie terrain : 626 m²
Localisation
Contactez nous
Pour plus d'informations sur cette annonce, n'hésitez pas à nous contacter