Vente
Ferme
à
Bérat
85 000 €
Bérat (31370)
iad France - Justine Pradere vous propose: BERAT – PROXIMITÉ CENTRE-VILLE
ANCIEN CORPS DE FERME – PRODUIT BRUT À RÉHABILITER – TRÈS FORT POTENTIEL
Situé à Bérat, à environ 30 km de Toulouse et 15 km de Muret, avec un accès rapide par l’autoroute, cet ancien corps de ferme de la fin du XIXᵉ siècle constitue une opportunité rare pour un projet de réhabilitation complète.
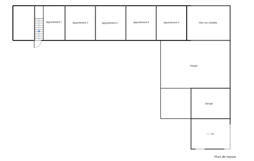
Le bâti existant développe actuellement une surface habitable d’environ 259,48 m², à laquelle s’ajoutent de nombreux volumes exploitables.
L’ensemble se compose :
•d’une maison d’habitation avec jardin privatif et abri voiture,
•d’un premier hangar attenant, offrant un potentiel d’extension significatif,
•d’un second hangar de grande capacité,
•et, en fond de cour, d’anciennes dépendances aujourd’hui divisées en cinq parties indépendantes, pouvant être réhabilitées en surfaces habitables, ou conservées en espaces de stockage, garages, ateliers ou annexes, selon la destination souhaitée et les autorisations d’urbanisme.
Un plan de masse de l’existant est disponible afin d’appréhender précisément l’implantation et les volumes.
Le bien est proposé en état brut, nécessitant une rénovation intégrale (second OEuvre complet, réseaux, isolation, menuiseries, aménagements intérieurs).
Les réseaux (eau, électricité, assainissement) sont présents à proximité immédiate, les raccordements restant à réaliser.
Après travaux, la surface de plancher exploitable pourra être sensiblement augmentée, offrant un potentiel de valorisation important.
Le charme de l’ancien est pleinement conservé : façade en pierre, structures traditionnelles, poutres d’origine, volumes généreux et hauteurs sous plafond, constituant une base idéale pour un projet architectural ambitieux.
🔧 PRODUIT BRUT – PROJET À FORTE VALEUR AJOUTÉE 🔧
Grâce à son prix très attractif, ce bien s’adresse aussi bien à des particuliers avertis qu’à des investisseurs ou marchands de biens, à la recherche d’un actif à fort potentiel de requalification : résidence principale de caractère, projet mixte, ou opération de valorisation patrimoniale.
📩 Des photos détaillées de chaque partie sont disponibles sur demande par mail.
📞 Visite sur rendez-vous
Une conseillère est disponible 7 jours sur 7 pour vous accompagner dans l’étude et la réalisation de votre projet.
Honoraires d'agence à la charge du vendeur.
Bien non soumis au DPE. Les informations sur les risques auxquels ce bien est exposé, y compris l'obligation légale de débroussaillement, sont disponibles sur le site Géorisques : http://www.georisques.gouv.fr.
La présente annonce immobilière a été rédigée sous la responsabilité éditoriale de Mme Justine Pradere mandataire indépendant en immobilier (sans détention de fonds), agent commercial de la SAS I@D France immatriculé au RSAC de TOULOUSE sous le numéro 919029702, titulaire de la carte de démarchage immobilier pour le compte de la société I@D France SAS.
Mandat : 1911983
Diagnostic de Performance Énergétique (DPE)
Plus d'informations
-
Descriptif
- Nbre. d'étages : 1
- Nb. de pièces : 1
-
Superficies
- Superficie terrain : 582 m²
- Surface habitable : 259 m²
-
Etat
- Année de construction : 1800
-
Conditions
- Honoraires à charge de : vendeur
Localisation
Contactez nous
Pour plus d'informations sur cette annonce, n'hésitez pas à nous contacter