Location
Appartement
à
Montlhéry
790 € CC /mois
Montlhéry (91310)
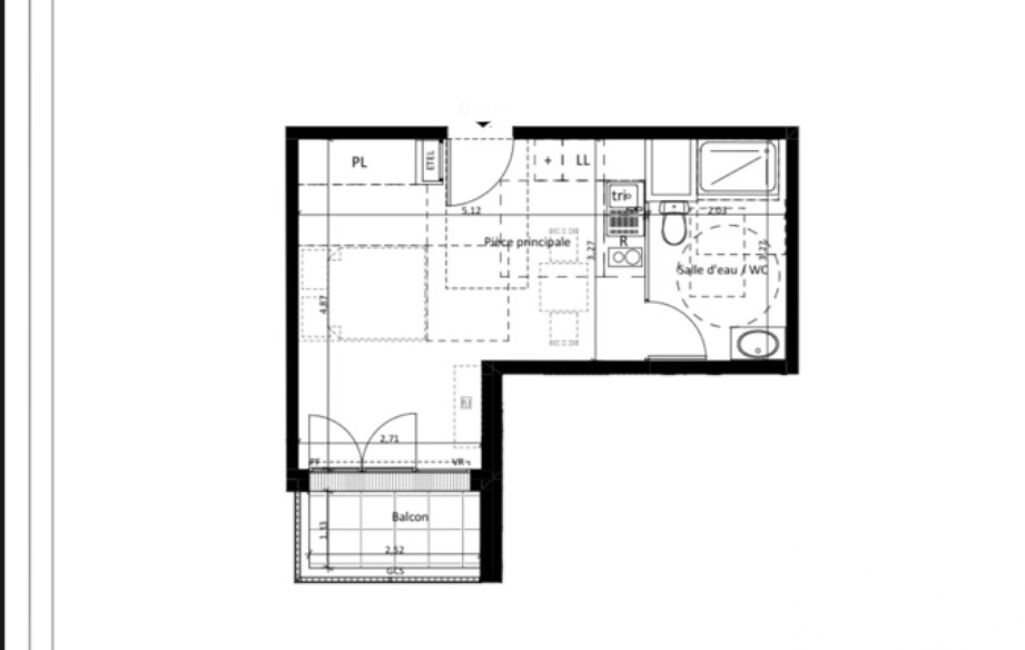
iad France - Lorenzo Morais Pimentel vous propose: Studio 26 m² – Résidence neuve de standing – Plein sud – Parking – Disponible février 2026
Dans une résidence de haut standing livrée en 2026, venez découvrir ce studio de 26 m² parfaitement agencé, sans aucune perte de place.
Situé au 2ᵉ étage sur 3, l’appartement bénéficie d’une exposition plein sud offrant une belle luminosité naturelle tout au long de la journée, ainsi qu’une vue dégagée sans aucun vis-à-vis, garantissant calme et intimité.
L’espace intérieur est optimisé pour un confort de vie maximal, idéal pour :
une personne seule,
un jeune couple,
ou un jeune actif démarrant dans la vie professionnelle.
Le logement sera meublé.
Une place de parking en sous-sol est également disponible, un véritable atout au quotidien.
Les + du bien :
Résidence neuve (2026)
Haut standing
Plein sud
Vue dégagée sans vis-à-vis
Agencement optimisé
2ᵉ étage sur 3
Meublé
Parking en sous-sol
Un studio rare sur le marché, alliant modernité, confort et qualité de vie.
Le loyer est charges comprises. Les charges de copropriété incluent :
•eau froide
•eau chaude
•chauffage
•entretien des parties communes
•entretien des espaces verts
•ascenseur
•place de parking en sous-sol
Appartement idéal pour une personne seule ou un étudiant recherchant un logement confortable, moderne et clé en main.
Disponible immédiatement.
Si vous êtes intéressé, merci de me contacter.
Si vous disposez déjà d’un dossier ZELOCK ou d’une garantie VISALE, vous pouvez également me le transmettre par mail.
Information d'affichage énergétique sur ce bien : classe ENERGIE C indice 83 et classe CLIMAT C indice 17. Les informations sur les risques auxquels ce bien est exposé, y compris l'obligation légale de débroussaillement, sont disponibles sur le site Géorisques : http://www.georisques.gouv.fr.
La présente annonce immobilière a été rédigée sous la responsabilité éditoriale de M Lorenzo Morais Pimentel mandataire indépendant en immobilier (sans détention de fonds), agent commercial de la SAS I@D France immatriculé au RSAC de Evry sous le numéro 904355922, titulaire de la carte de démarchage immobilier pour le compte de la société I@D France SAS. Location meublée. Montant du loyer mensuel charges comprises : 790.00 euros / mois. Provision mensuelle avec récupération annuelle : 100.00 euros / mois. Zone soumise à encadrement : non. Dépôt de garantie : 1380 euros. Honoraires TTC à la charge du locataire: 117 euros (soit 4€/m²).
Mandat : 1932473
Diagnostic de Performance Énergétique (DPE)
Plus d'informations
-
Equipement
- Alarme
- Câble TV
- Digicode
- Chauffage : collectif gaz radiateur
- Interphone
- Climatisation
-
Descriptif
- Étage du bien : 3eme
- Meublé
- Ascenseur
- Nbre. d'étages : 3
- Nb. de pièces : 1
-
Conditions
- Charges : 100 €
- Honoraires : 117 €
-
Etat
- Année de construction : 2026
-
Superficies
- Surface habitable : 26 m²
Localisation
Contactez nous
Pour plus d'informations sur cette annonce, n'hésitez pas à nous contacter