Vente
Appartement
à
Nègrepelisse
83 500 €
Nègrepelisse (82800)
iad France - Géraldine Nouri vous propose: T2 bis de caractère au cOEur de Nègrepelisse – Vente en plateau avec fort potentiel et possibilité de projet clé en main
Au cOEur du charmant village de Nègrepelisse, à seulement quelques minutes de Montauban et avec un accès rapide à l’autoroute, découvrez ce T2 bis situé au premier étage au sein d’une maison de caractère en cours de rénovation complète.
Situé à deux pas de la place du village, des commerces, écoles et services, ce bien offre un cadre de vie recherché entre vie de village et proximité immédiate de Montauban.
Un appartement avec cachet et fonctionnalité
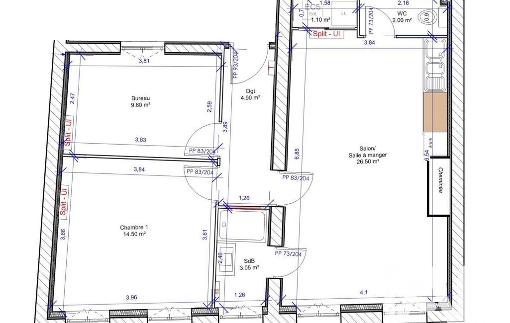
Ce futur appartement d’environ 62 m² habitables, situé au 1er étage (accès par escalier en parties communes), propose un agencement optimisé avec une chambre et un espace bureau idéal pour le télétravail ou un coin nuit complémentaire.
La pièce de vie, spacieuse et lumineuse, bénéficie de belles ouvertures avec des fenêtres à 1,80 m de hauteur et d’une hauteur sous plafond de 2,70 m, offrant confort et volume.
Le charme de l’ancien est conservé avec cheminée dans le séjour, apportant caractère et authenticité.
Des rangements intégrés peuvent être aménagés dans le séjour et le bureau selon les besoins de l’acquéreur.
Agencement prévu :
- pièce de vie avec cuisine de 27,60 m²
- chambre de 14,50 m²
- bureau de 9,60 m²
- salle d’eau de 3,05 m²
- WC séparés de 2 m²
- dégagement de 4,90 m²
Une réhabilitation complète de la maison
L’immeuble fait l’objet d’une rénovation globale, incluant notamment :
- révision de la charpente et de la toiture
- démolition et petite maçonnerie
- création des parties communes et cloisons séparatives
- renfort des planchers et escalier
- menuiseries extérieures
- séparation des lots
- passage des réseaux (VMC, chauffage, électricité, eau potable, évacuation)
Tout le gros OEuvre est entièrement pris en charge, garantissant un projet sécurisé.
Les avantages d’un achat en plateau
Ce bien est proposé en plateau, offrant plusieurs avantages :
- frais de notaire réduits
- sécurité financière : paiement uniquement sur du concret, sans appel de fonds comme dans le neuf sur plan
- personnalisation possible de l’aménagement intérieur
- création de valeur après travaux
- solution idéale pour investisseur (rentabilité brute estimée entre 5,4 % et 5,9 %) ou pour une résidence principale
- possibilité de gérer soi-même le second OEuvre ou de se faire accompagner par un maître d’OEuvre
Un projet clé en main possible
Une enveloppe travaux estimative de 40 500 € TTC permet la réalisation complète de l’aménagement intérieur et un accompagnement clé en mains comprenant :
- isolation et plâtrerie
- électricité et plomberie
- chauffage par pompe à chaleur air/air Atlantic
- sols, peintures et cuisine équipée
- sanitaires et VMC hygroréglable Atlantic
- maîtrise d’OEuvre avec suivi de chantier
DPE projeté après travaux : C
Prix
- Prix du plateau : 83 500 €
- Budget travaux estimatif : 40 500 €
Coût global estimé : 124 000 €
Un projet particulièrement attractif pour un premier achat, une résidence principale avec espace bureau ou un investissement locatif à fort potentiel de valorisation.
Plans, dossier complet et étude du projet disponibles sur demande.
La presente annonce immobiliere vise 1 lot situé dans une copropriété de 8 lots au total et ne faisant l'objet d'aucune procédure en cours citée à l'article L. 721-1 du code de la construction et de l'habitation. Montant moyen mensuel de charges déclaré par le vendeur : 37€ par mois (soit 444 € annuel). Honoraires d'agence à la charge du vendeur.
Information d'affichage énergétique sur ce bien : classe ENERGIE E indice 288 et classe CLIMAT B indice 9. Les informations sur les risques auxquels ce bien est exposé, y compris l'obligation légale de débroussaillement, sont disponibles sur le site Géorisques : http://www.georisques.gouv.fr.
La présente annonce immobilière a été rédigée sous la responsabilité éditoriale de Mme Géraldine Nouri mandataire indépendant en immobilier (sans détention de fonds), agent commercial de la SAS I@D France immatriculé au RSAC de Montauban sous le numéro 979466331, titulaire de la carte de démarchage immobilier pour le compte de la société I@D France SAS.
Mandat : 1975541
Diagnostic de Performance Énergétique (DPE)
Plus d'informations
-
Equipement
- Câble TV
- Placards
- Chauffage : individuel electrique
- Interphone
- Climatisation
-
Descriptif
- Étage du bien : 1er
- Nbre. d'étages : 2
- Nbre. de chambres : 1
- Nb. de pièces : 3
-
Loi ALUR
- Copropriété
- Nombre de lots de la copropriété : 8
- Moyenne de la quote part(an) : 444 €
-
Etat
- Année de construction : 1860
-
Conditions
- Honoraires à charge de : vendeur
-
Superficies
- Surface habitable : 62 m²
Localisation
Contactez nous
Pour plus d'informations sur cette annonce, n'hésitez pas à nous contacter